• 1
  • 2
Ако сте ремонтирали нещо в дома си. Качете тук вашите снимки. Преди - След
playboy_30 - помощник
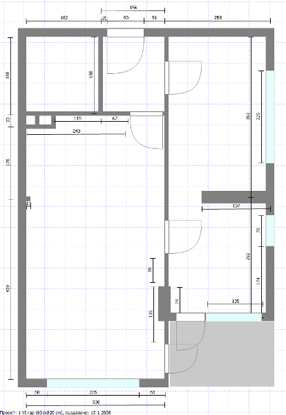
Please Помогнете ми да разпределя новиа си апартамент.Пращам Ви скица и ще съм Ви много благодарен ако ме посъветвате.

Прикачен файл

111.png
111.png (39.63 KиБ) Видяна 6088 пъти

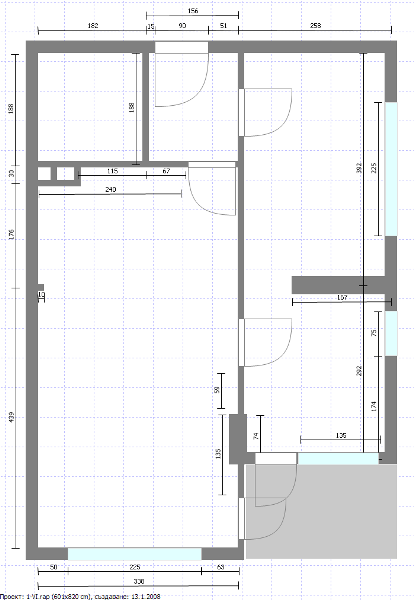
Прикачен файл

111.png
111.png (39.63 KиБ) Видяна 6088 пъти
Profi Stroi - специалист
Не че нещо ама за няколко часа да пуснеш теми на две места или си много на зор да получиш разпределение точно тук и сега или просто не си прочел достатъчно добре правилата за писане в форума
prascho - майстор
профи,.. това е плейбой, не е жена ти. Прояви малко уважение :prayer: . Изкажи мнение, вместо да тръгваш с задните части :butthead: :-D. А правилата не е хубаво да се четат, щото в противен случай такива съвестни люде като мен стриктно ще ги изпълняват :lol: В допълнение ще направя един алгоритъм с предсказване. Най-вероятно човека наскоро си е купил ново хубаво щилиже обвито в прохладна зелена гора, но откакто се е настанил го мъчи проблема с разпределението и нощем не може да мигне. Всяка минута е ценна, не искаме да получи разстройство на съня нали :?:
Profi Stroi - специалист
Да говориш за задните ми части при условия че си ги позлвам само аз най-малкото не е удачно в този случай
Да се пък кланям на някой извадил 50 бона било то и в евро за да си купи жилище -тая няма да стане
Проектанти има за тази работа ,а те пари искат и то не малко
А с тези няколко мнения от негова страна почваме да се чустваме задължение да направим разпределение едва ли не :?
Иначе жив и здрав плейбоя да млати кучки в новата къща не съм му душманин
anmoll - специалист
Получихме скицата :) . Странен разговор тече в тази тема.
prascho - майстор
Все пак за две стаи с кенеф само плейбой може да извади "50 бона, макар и в евро" :lol: . Първото ми мнение в другата стая също беше негативно, но на мига след като го написах го изтрих. Да не си показваме зависта и да дадем съвет. Изказвам предположение около 90%, че собственика няма да се вслуша /два съвета му се предложиха, но нямаше дори стон от негова страна/. В края на краищата смятам, че изказването на мнение кара човек да мисли и е много вероятно да бъде полезен с хрумнала идея както на запитващия така и на себе си ;)
Специално към анмол, следващия път ще я изпратим по пейо :), тези Интернет услуги са някак бавни :cool:
playboy_30 - помощник
Здравейте.Проблема е, че строителите ме притискат с това как да преграждат самите стаи.В момента апартамента е едно общо помещение .Трябва до 4 дни да им дам скица с това как да го направят.
n_a - МАЙСТОРИЩЕ
Answers: 1
playboy_30 написа:
Здравейте.Проблема е, че строителите ме притискат с това как да преграждат самите стаи.В момента апартамента е едно общо помещение .Трябва до 4 дни да им дам скица с това как да го направят.
Ами така да беше казал!!!
Пусни нова скица със СЪЩЕСТВУВАЩИТЕ и небутваеми стени! И с канализация! И във връзка с интериора - колко сте високи и колко деца има ...
prascho - майстор
като гледам блока дето строят под носа ни, стоителите не слагат никакви трегери. Най-добре е да дадеш скица, в която фигурират канализационните изводи, колоните и шайби ако има от вътрешните ти стени. Коминът го видяхме :) Както и броят и вида на помещенията, които желаеш да съществуват.
borkata3000 - специалист
playboy_30 написа:
Здравейте.Проблема е, че строителите ме притискат с това как да преграждат самите стаи.В момента апартамента е едно общо помещение .Трябва до 4 дни да им дам скица с това как да го направят.
Че защо някой друг да ти решава, ти как да живееш? :?
Сядаш, правиш списък и решаваш кое къде искаш да е.Списъка:
Дали искаш като седнеш на дивана, слънцето да ти пече в лицете, доакто гледаш ТВ.
Дали искаш като седнеш на дивана, слънцето да пече телевизора ти, докато ти искаш да гледаш картина, не оражението на слънцето.
Къде ако си сложиш дивана, ще остане място да се минава през стаята.
Дали жена ти иска, когато мие загорялата от вчерашната пица тава, по-тчно от разтеклото се сирене, освен ако тавата не е тефлонова, но да не задълбавам :), да гледа през прозореца.
Дали сутрин, когато се събуждаш, искаш слънцето да ти свети, когато си обърнат надясно или наляво. Дали да ти пече и когато си обърнат наляво и когато си обърнат и надясно.
И отново точката с телевизора, но този път за спалнята.
Ако телевизора ти ще стои на секцията, съобразяваш едното с другото и другото с едното.

А пък щом ще решаваш къде да бъдат стените - хващаш дървения метър и отиваш в магазина. Но, метъра дървен да е, че така си осигуряваш вниманието на консултанти и зяпачи, които много могат да помогнат. Та, отиваш в мебелния магазин и взимаш ориентировъчно мерки на спалня, диван, фотьойли, табуретки. Така събраните мерки мащабираш и налагаш на плана. И гледаш какво разстояние би ти оставало ако еди коя си стена бъде еди къде си.
Например. :)
  • 1
  • 2

Тема "SOS- Razpredelenie" | Включи се в дискусията:


Сподели форума:

Бъди информиран. Следвай "Направи сам" във Facebook:

Намери изпълнител и вдъхновения за дома. Следвай MaistorPlus във Facebook: