Реших по никое време да правя ремонт в спалнята и тя да стане детска, а спалня да стане сегашната детска стая. Аргументите- южна, по- голямка от другата, по- светла...
Идеята беше да се направи едно "освежаване", както се изрази съпругата. Свежото в случая трябваше да са по- гладки стени. И- боядисани в свеж лилав цвят, а не както досега- бели. Стените са тухлени, измазани с варова мазилка, без шпакловка, с години боядисвани с обикновена вар, която е станала с дебелина на шпакловка. Тавана- същата работа.
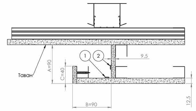
За да е още "по- свежо"- с кой акъл реших тавана да е с гипсокартон. За да ми е по- трудно реших да има и фигури с лунички и скрито осветление- да сме в крак с модата.
Идеята беше да се направи едно "освежаване", както се изрази съпругата. Свежото в случая трябваше да са по- гладки стени. И- боядисани в свеж лилав цвят, а не както досега- бели. Стените са тухлени, измазани с варова мазилка, без шпакловка, с години боядисвани с обикновена вар, която е станала с дебелина на шпакловка. Тавана- същата работа.
За да е още "по- свежо"- с кой акъл реших тавана да е с гипсокартон. За да ми е по- трудно реших да има и фигури с лунички и скрито осветление- да сме в крак с модата.
Прикачен файл
Идейния проект
proekta.JPG (15.58 KиБ) Видяна 7776 пъти
Прикачен файл
Канали и замазване на кабели за новото осветление
kanali_kabeli.jpg (21.78 KиБ) Видяна 7776 пъти
Прикачен файл
kyrtene_okacvachi.jpg (21.36 KиБ) Видяна 7776 пъти
Прикачен файл
малко къртене на мазилка по тавана за окачвачите
okacvach.jpg (22.94 KиБ) Видяна 7776 пъти
