Здравейте на всички! Пиша за първи път тук след дълго четене
Сдобих се с апартамент, който иска ремонт и се чудя как да го направя за да е възможно най-функционално и да използвам квадратурата която имам пълноценно. Апартамента е на приземен етаж от къща, като външните стени са по 40см а вътрешните по 25см. Ето и едноминутна скица

plan.jpg (45.01 KиБ) Видяна 7314 пъти
Празните места са врати, а сините линийки са прозорци. Това кафявото с точките между двете големи стаи е комин.
Долу в ляво където има стрелки показва стълбището като под дясното има избичка, която мислех да направя тоалетна.
Там където съм писал WC значи баня+ тоалетна.
И такааа нека филмът да започне сега
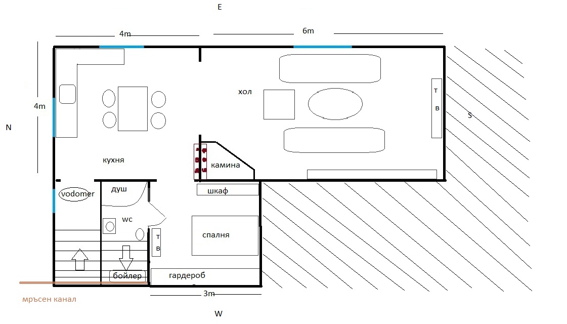
Ето една примерна скица на последното ми хрумване.
plan 1.jpg (45.89 KиБ) Видяна 7314 пъти
Мислех да направя свод между двете големи стаи, като по-малката направя кухня а по-голямата хол, като затворя вратата на голямата и на нейно място направя камина. После да бутна стената между коридора и тъмната стая и това помещение да направя спалня, като изместя банята и тоалетната под и пред стълбите.
Ето и още една скица която е идея на майка ми която ме съветва да не се занимавам с къртене и модернизации и да не ползвам 3 стаи а 2

plan 2.jpg (47.13 KиБ) Видяна 7314 пъти
Сега е ВАШ ред давайте идеи и мнения, ако трябва ще направя и снимки.
Сдобих се с апартамент, който иска ремонт и се чудя как да го направя за да е възможно най-функционално и да използвам квадратурата която имам пълноценно. Апартамента е на приземен етаж от къща, като външните стени са по 40см а вътрешните по 25см. Ето и едноминутна скица
Прикачен файл:
plan.jpg (45.01 KиБ) Видяна 7314 пъти
Долу в ляво където има стрелки показва стълбището като под дясното има избичка, която мислех да направя тоалетна.
Там където съм писал WC значи баня+ тоалетна.
И такааа нека филмът да започне сега
Ето една примерна скица на последното ми хрумване.
Прикачен файл:
plan 1.jpg (45.89 KиБ) Видяна 7314 пъти
Ето и още една скица която е идея на майка ми която ме съветва да не се занимавам с къртене и модернизации и да не ползвам 3 стаи а 2
Прикачен файл:
plan 2.jpg (47.13 KиБ) Видяна 7314 пъти
Прикачен файл
plan.jpg (42.99 KиБ) Видяна 7314 пъти
