Здравейте ,
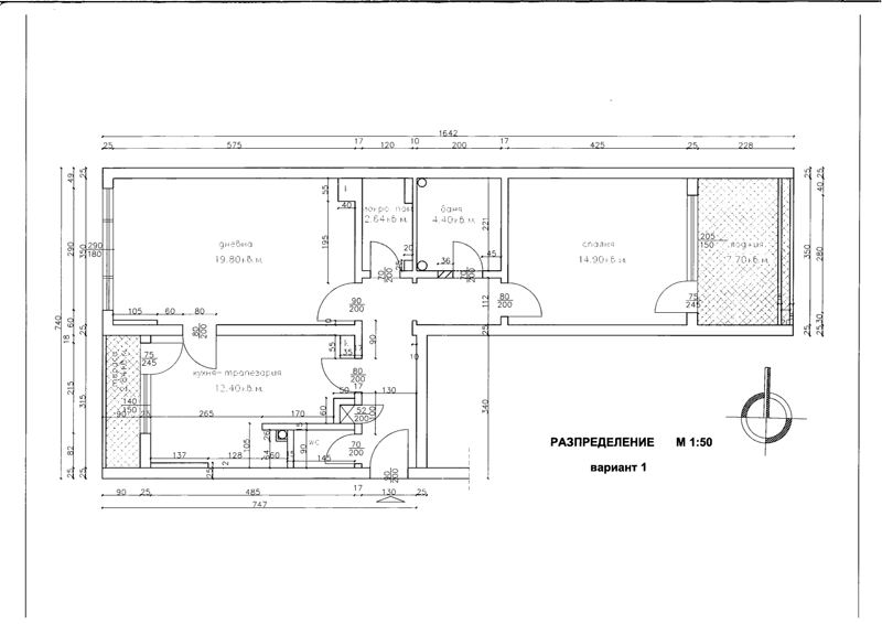
Наскоро си купих апартамент ,ЕПК , доста добър като квадратура .За съжаление всичко е по БДС ,почти без никакви подобрения.След като смених дограмата и сложих външна изолация ,стигнах до ОСНОВНИЯ ВЪПРОС - А СЕГА НАКЪДЕ???МОля ВИ дайте някакви идеи зе преустройство .Много ми се иска по-голямата спалня и банята ,която в момента се използва като мокро помещение , да ги съединя и да направя кухн.бокс и трапезария...Първата ми идея беше да направя кухн . бокс в малкото помещение до дневната , но се оказа ,че стената между тях е носеща и не мога да я бутна.Вече затворих вратата между дневната и настоящата кухня......HELP!!!!
Наскоро си купих апартамент ,ЕПК , доста добър като квадратура .За съжаление всичко е по БДС ,почти без никакви подобрения.След като смених дограмата и сложих външна изолация ,стигнах до ОСНОВНИЯ ВЪПРОС - А СЕГА НАКЪДЕ???МОля ВИ дайте някакви идеи зе преустройство .Много ми се иска по-голямата спалня и банята ,която в момента се използва като мокро помещение , да ги съединя и да направя кухн.бокс и трапезария...Първата ми идея беше да направя кухн . бокс в малкото помещение до дневната , но се оказа ,че стената между тях е носеща и не мога да я бутна.Вече затворих вратата между дневната и настоящата кухня......HELP!!!!
Прикачен файл
Разпределение
apart.jpg (44.18 KиБ) Видяна 4547 пъти