Имало едно време една баня.
И тя, както и много нейни себеподобни в този форум, дори не подозирала какво може да й се случи.
Това заграденото на жълтата схема горе дясно са тръбите (канал, отдушник, вертикални щрангове, водомери), заградени с мноооого тънък измазан итонг (или друг газобетон)
Следва и богат снимков мат'рал.
И тя, както и много нейни себеподобни в този форум, дори не подозирала какво може да й се случи.
Това заграденото на жълтата схема горе дясно са тръбите (канал, отдушник, вертикални щрангове, водомери), заградени с мноооого тънък измазан итонг (или друг газобетон)
Следва и богат снимков мат'рал.
Прикачен файл
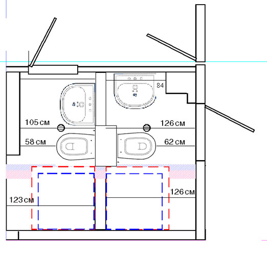
Това е схемата на банята, сам си я направих с измерените от мен размери.
F_Bania 0 Shema.jpg (70.82 KиБ) Видяна 10774 пъти
Прикачен файл
Това е схемата според архитектурния проект. На това му викам аз чертеШ.
f_Bania Shema Stroitel.jpg (78.79 KиБ) Видяна 10774 пъти
Последна промяна от gjordanov на вт фев 27, 2007 11:17 pm, променено общо 1 път.
