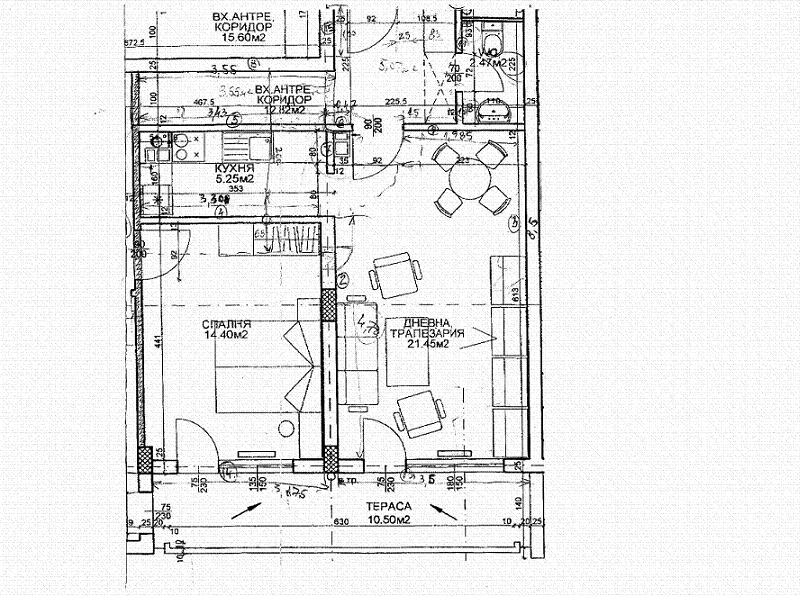
Имаме нужда от съвет за преустройство на жилището. Сегашното разположение по чертежа не е рационално. Искаме да го променим в процеса на изграждане. Идеята ни е да се оформят дневна, бокс, спалня и детска стая. Чистата площ на апартамента е 62.69 кв.м. Всяка една идея е добре дошла. Брагодарим предварително! 
Прикачен файл
Skica_apartament.JPG (120.9 KиБ) Видяна 4376 пъти