• 1
  • 2
Ако сте ремонтирали нещо в дома си. Качете тук вашите снимки. Преди - След
audibs - напреднал
Добре чакам скиците ти.Къде ще ги пратиш ма пощата или на лични съобщения?
Emerald - модератор
audibs написа:
Добре чакам скиците ти.Къде ще ги пратиш ма пощата или на лични съобщения?
Тук ще ги пусна, но ще трябва да почакаш още... :? Компа със скенера ми в момента е без и-нет, а местенето на скенера е главоболие. :? Може за това време да успея да ти прерисувам втората схема на чисто.
audibs - напреднал
няма проблеми не бързам.Ако това ще ти помогне за схемите,смятам да извикам една моя близка която е специалист по фен шуи,за да ми помогне за разположението на мебелировката и цветови схеми и т.н.Смятам до колкото е възможно да разположа всичко според фен шуи.
Emerald - модератор
Този човек няма ли да се появи да си каже мнението? :?
Justy - майстор
В спалнята през гардероба ли се влиза :? или не съм видял нещо
Emerald - модератор
Justy написа:
В спалнята през гардероба ли се влиза :? или не съм видял нещо
В неговия вариант май нещо такова е изобразил. :? На моите схеми ясно се вижда входа до гардероба и гардеробното на втората.
audibs - напреднал
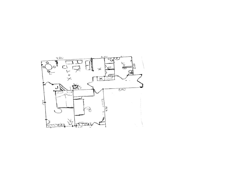
Здравей разгледах схемите и идеите ти са интересни.Лошото е че вече всички кабели са прекатани стените са на гипсова шпаковка и единствено стената разделяща детската и спалнята още не е направена.При твоя вариянт всичко е доста разчупено но не ми се иска като седна да ям и да се вижда коридора и входната врата,а също ще има проблем с отоплението.При моята скица вратата към спалнята не е през гардероб ,а късо коридорче едната стена на което е вграден гардероб,а и самата врата се пада в ъгъла на хола и не се набива на очи.Приложената скица съм дал примерно обзавеждане.Най-голямата ми дилема е дали да сложа вана в банята(която е 2.20на 1.60).Смятам че кухненския бокс е доста функционален,под плота ще са пералня и миялна,в единия край е мивката,а в другия до кумина печка и аспиратор,хладилника е в нишата към коридора.Със строителя в момента спорим за гаража ми който е на ъгъла с лице към две улици и е свързан с мазите ми долу(гараж-25кв.м и мази 30кв.м).Та искам някой преустройства и промяна на статута от гараж на офис със сервизно помещение и склад.Затова за апартамента вече не мога да правя големи промени(а и направиха голям компромис за слънчевата ми инсталация)

Прикачен файл

scan0003.jpg
scan0003.jpg (35.67 KиБ) Видяна 5102 пъти
Emerald - модератор
Имаш големи грешки в мащаба на мебелите, които си нарисувал- така както си намислил няма да стане. :? Искаш съвет, но не си готов на промени. Не е въпроса в строителя-такива преустройства хората си правят и сами.

Моя грешката, че се втурвам да поправям там където не са молили. Схемите си прибирам. Направих ти абсолютно безплатно нещо което струва много пари. Сигурно там сбърках.
  • 1
  • 2

Тема "съвет за обзавеждане" | Включи се в дискусията:


Сподели форума:

Бъди информиран. Следвай "Направи сам" във Facebook:

Намери изпълнител и вдъхновения за дома. Следвай MaistorPlus във Facebook: