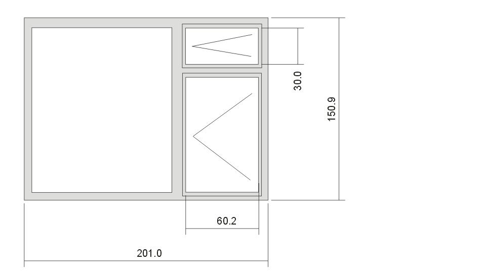
Прозореца е с размери 200х150 см (виж картинката). Идеята е да се отваря само отдушника и прозореца под него. Голямата част е неотваряема. Спрял съм се на алуминиев профил. Ще има и комарник пред отваряемите части.
Въпроса ми е относно вида на щората, термоизолацията и зидарията (бетонния пояс) над прозореца.
Тъй като ширината на прозореца е голяма, тривиалното решение е алуминиева ролетна щора. За съжаление това не ме устройва. Идеята на щората е освен за слънце-защита и някакъв вид термо-изолация (прозореца е западен и се „обдухва“ здраво от вятъра), да се използва и като някакъв вид защита от вандали и цигански набези. Та представете си ако щората е алуминиева – колко време ще успея да я опазя от циганите… Т.е. трябва да е пластмасова, за да не е интересна за тях. При това положение – щорите трябва да са две – една пред голямото стъкло (неотваряемата част) и една пред малките стъкла (отваряемоите части).
До тук добре, но възниква въпроса „КАК СЕ ПОЧИСТВА ЩОРАТА ПРЕД НЕОТВАРЯЕМОТО КРИЛО НА ПРОЗОРЕЦА ОТ ВЪТРЕШНАТА И СТРАНА – ТАЗИ, КОЯТО СЕ ВИЖДА ОТВЪТРЕ, КОГАТО ЩОРАТА Е СПУСНАТА“ ? Ще има и прозорци на втория етаж …
Можете ли да ми предложите варианти и решения за този случай?
Кутията на щората ми се ще да не е на фасадата, а да е в отвора за прозореца, за да не стърчи пред фасадата. Въпроса ми е как се изработват щурцовете/бетонните-пояси и как се термо-изолира около прозореца в този случай? (Стените са 40 см дебели). Начертал съм един вариант, но не знам така ли се прави … Не знам няма ли да има и проблем с въжето за щората … Някой може ли да ми даде инфо и акъл по въпроса?
Въпроса ми е относно вида на щората, термоизолацията и зидарията (бетонния пояс) над прозореца.
Тъй като ширината на прозореца е голяма, тривиалното решение е алуминиева ролетна щора. За съжаление това не ме устройва. Идеята на щората е освен за слънце-защита и някакъв вид термо-изолация (прозореца е западен и се „обдухва“ здраво от вятъра), да се използва и като някакъв вид защита от вандали и цигански набези. Та представете си ако щората е алуминиева – колко време ще успея да я опазя от циганите… Т.е. трябва да е пластмасова, за да не е интересна за тях. При това положение – щорите трябва да са две – една пред голямото стъкло (неотваряемата част) и една пред малките стъкла (отваряемоите части).
До тук добре, но възниква въпроса „КАК СЕ ПОЧИСТВА ЩОРАТА ПРЕД НЕОТВАРЯЕМОТО КРИЛО НА ПРОЗОРЕЦА ОТ ВЪТРЕШНАТА И СТРАНА – ТАЗИ, КОЯТО СЕ ВИЖДА ОТВЪТРЕ, КОГАТО ЩОРАТА Е СПУСНАТА“ ? Ще има и прозорци на втория етаж …
Можете ли да ми предложите варианти и решения за този случай?
Кутията на щората ми се ще да не е на фасадата, а да е в отвора за прозореца, за да не стърчи пред фасадата. Въпроса ми е как се изработват щурцовете/бетонните-пояси и как се термо-изолира около прозореца в този случай? (Стените са 40 см дебели). Начертал съм един вариант, но не знам така ли се прави … Не знам няма ли да има и проблем с въжето за щората … Някой може ли да ми даде инфо и акъл по въпроса?
Прикачен файл
Stora.JPG (34.72 KиБ) Видяна 1523 пъти
Прикачен файл
Prozorec.JPG (25.41 KиБ) Видяна 1523 пъти