Ако незнаете къде да постнете въпрос или мнение, тука е мястото.
Здравейте отново.....Решихме със съпруга ми да вземем едно сглобяемо бунгало....,което в случая ще е най-евтиното като за начало....2000лв. за 56кв.м....до тук добре...Моля за компетентно мнение....ориентировачно...колко средства ще са ми необходими за основите,изолация отвън и гипскартон отвътре....като за начало това....Благодаря...
n_a - МАЙСТОРИЩЕ
Answers: 1
А 2000 за какво давате?
tokuro40 - специалист
още 10000 за вси4ко без труда а той зависи от май :wink: :wink: :wink: сторите
tokuro40 - специалист
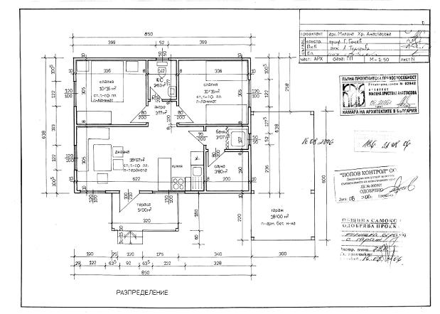
ето то едно планче за такова бунгало

Прикачен файл

0002_378.jpg
0002_378.jpg (46.35 KиБ) Видяна 8815 пъти
penata - специалист
rodex написа:
Здравейте отново.....Решихме със съпруга ми да вземем едно сглобяемо бунгало....,което в случая ще е най-евтиното като за начало....2000лв. за 56кв.м....до тук добре...Моля за компетентно мнение....ориентировачно...колко средства ще са ми необходими за основите,изолация отвън и гипскартон отвътре....като за начало това....Благодаря...
колега коригирай цената не може да е 2000 бъркаш нулите
angel_ov - специалист
И аз искам за 2000!
Даже 2 бр. вземам.
perko - специалист
Пардон, изял съм една нула.
Струва 20 000 лв. и държа да подчертая, че не става дума за бунгало а истинска къща. Разглабяне и сглобяване излиза още 11 400 лв, с подмяна на повредени при демонтажа елементи, ако се направи от фирмата изпълнител. Естествено, ако някои има желание може и сам да се нагърби с тази задача.
Съжалявам за малката грешка.
cakev79 - специалист
даите предложения за фирми изпълнителки

Тема "Колко ще ми струва сглобяема къща от ....до" | Включи се в дискусията:


Сподели форума:

Бъди информиран. Следвай "Направи сам" във Facebook:

Намери изпълнител и вдъхновения за дома. Следвай MaistorPlus във Facebook: