Ще се радвам ако тук могат да помогнат конструкторите с мнение
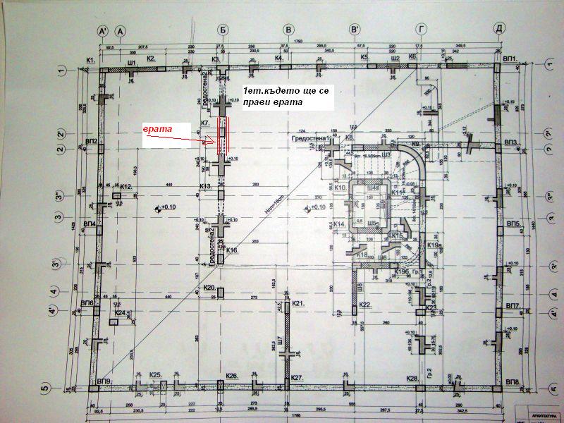
Сградата е нова на 5 етажа ... има акт16 и всичко ... клиентат е на партер ...под него има подземни гаражи ... Апартамента на клиента граничи с 3 гаража надземни и са залепени до неговия апартамент... разделя ги гредостена ... идеята е да се направи отвор за врата в гредостената за да се обединят с гаражите които ще се ползват за офис и в момента нямат никакъв санитарен възел ... идеята е тук да не проявяваме самодейност а да се помисли чрез укрепване и др. да се вземе най правилното решение ... ако има човек който може да направи конструктивно предложение да пише ... нищо няма да е без платно ... но АКО е възможно това искаме да се узакони ...
Предварително ви казвам че конструктора на обекта не иска да говорим на тази тема (не знам защо) .Съгласни сме на всичко ... допълнително укрепване ...колони ...трегери каквото трябва ....искаме да е направено като хората и законно ... Благодаря ...
Сградата е нова на 5 етажа ... има акт16 и всичко ... клиентат е на партер ...под него има подземни гаражи ... Апартамента на клиента граничи с 3 гаража надземни и са залепени до неговия апартамент... разделя ги гредостена ... идеята е да се направи отвор за врата в гредостената за да се обединят с гаражите които ще се ползват за офис и в момента нямат никакъв санитарен възел ... идеята е тук да не проявяваме самодейност а да се помисли чрез укрепване и др. да се вземе най правилното решение ... ако има човек който може да направи конструктивно предложение да пише ... нищо няма да е без платно ... но АКО е възможно това искаме да се узакони ...
Предварително ви казвам че конструктора на обекта не иска да говорим на тази тема (не знам защо) .Съгласни сме на всичко ... допълнително укрепване ...колони ...трегери каквото трябва ....искаме да е направено като хората и законно ... Благодаря ...
Прикачен файл
2 етаж (над нас)
DSC00517.JPG (116.86 KиБ) Видяна 3487 пъти
Прикачен файл
DSC00516.JPG (118.86 KиБ) Видяна 3487 пъти
Прикачен файл
подземни гаражи
DSC00515.JPG (121.3 KиБ) Видяна 3487 пъти
