• 1
  • 2
Ако незнаете къде да постнете въпрос или мнение, тука е мястото.
Duke_BG - специалист
не бъдете егоисти - сега имате едно дете ами ако станат две ?
предлагам да направите кухнята и трапезарията на спалня за вас а вашата спалня да стане детска - не ви е нужна такава голяма спалня а на децата им е нужно пространство за игра :)
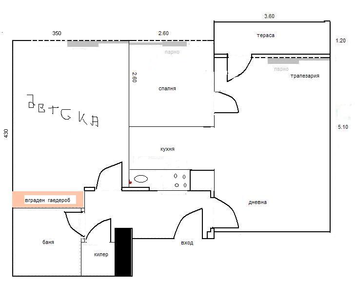
сложил съм на скицата още един вграден гардероб който има две функции : да скрие тръбите и да оползотвори пространството до комина ( може и да се наложи отходната тръба да мине през коридора като за целта ще е необходимо да се постави гипскартон, който да има и функцията на преградна стена ( с един удар два заяка ) Аспиратора на кунята ще се върже лесно през стената като за кухненски бокс ви предлагам "П" образна кухня като затворената част на "П"-то е към вратата на дневната ,а частта която следа към дневната е бар плот на две нива , като второто ниво е от плот с ширина 30 см - по този начин ще скривате работния плот от дневната

Сори за набързо надрасканите корекции, но се надявам да разберете какво съм имал пред вид

Прикачен файл

skica_ot men.JPG
skica_ot men.JPG (31.72 KиБ) Видяна 6092 пъти
Duke_BG - специалист
още един вариант от мен - ако правилно съм разбрал, че кухнята с трапезарията е с размери 2.60 х 4.3м
малиии днес яко ме е хванала музата :)

Прикачен файл

skica2_ot men.JPG
skica2_ot men.JPG (29.34 KиБ) Видяна 6089 пъти
dildes
Мога ли да ви попитам тези схеми и чертежчета с каква програмка ги правите, щото и на мен ми предстои такова едно чудене кое - къде, та ако ви спретна едно чертежче, за моята идея да мога да получа от вас съвети евентуално :roll:
mim
"чертежите" ги правих на Paint :) иначе после си свалих RoomArranger и стана много по-лесно, да не казвам и колко по-точно :-D Иначе идеите са много яки
dildes
Мога ли да ви попитам тези схеми и чертежчета с каква програмка ги правите, щото и на мен ми предстои такова едно чудене кое - къде, та ако ви спретна едно чертежче, за моята идея да мога да получа от вас съвети евентуално :roll:
dildes
Мога ли да ви попитам тези схеми и чертежчета с каква програмка ги правите, щото и на мен ми предстои такова едно чудене кое - къде, та ако ви спретна едно чертежче, за моята идея да мога да получа от вас съвети евентуално :roll:
  • 1
  • 2

Тема "Свършиха ми идеите за ремонт.." | Включи се в дискусията:


Сподели форума:

Бъди информиран. Следвай "Направи сам" във Facebook:

Намери изпълнител и вдъхновения за дома. Следвай MaistorPlus във Facebook: