Към всяко мнение вече можете да качите снимка. Преди - След
Тани - модератор
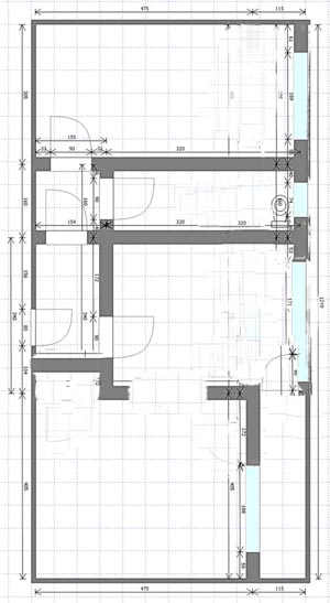
Дойде време и аз да стягам собствено жилище! В момента съм в процес на купуване и съм се спрял на този апартамент. Тухлен е , на четвърти последен етаж . Покрива е ремонтиран , но понеже тавана не е боядисван поне 10 години си личи , че не е текло никога. Всички стаи са южни с огромна 12 метрова тераса ! Размерите са горе-долу това , но програмата ги изкарва от среда на стена до среда на стена! Моля ви да дадете идеи как да си разположа стаите? Идеята ми е да си направя хол с кухненски бокс и две спални. Не ме притеснява да бутам стени , да местя врати и т.н. стига да не се окаже че има бетонни колони. Така че очаквам и най-смелите ви идеи! Мисля също да приобщя по-голямата част от терасата.
Ето скицата. Завъртях я за да се събере на екрана без да го разширява!

А това е файла на Room aranger за да ви е по-лесно да ми редактирате скицата!

http://gallery.napravisam.com/albums/us ... t%20vg.zip


Изображение
Последна промяна от Тани на пет фев 29, 2008 8:35 am, променено общо 1 път.
n_a - МАЙСТОРИЩЕ
Answers: 1
Стискам палци за успешна и щастлива сделка!
tokuro40 - специалист
a къде се намира това апартаментче?:):)
rockwall - майстор
супер е че си последен етаж и няма да се съобразяваш много с колони, носещи стени и т.н.

Е - все пак не можеш да съединиш всичко в едно де :lol:

абе сега се загледах - тва най-малкото помещение 150х160 с двете врати какво трябва да е - нещо преходно е ама каква му е функцията че нещо не схващам - при врата която влиза вътре няма да може да се сложат много неща там

а ти какво искаш да променяш иначе - на мен ми се струва доста добро като разположение и сега

но ако настояваш ето някои насоки - тераса ти тябва в кухнята и от помещението в което е пералнята

затова ти разширих спалнята и банята, съединих по-голямата спалня с кухнята - така става дневна с трапезария и бокс (само че губиш спалня) - махнах вратата към терасата от тази стая защото ще може да се излиза и през кухнята

махнах и вратата от тази стая кък коридора - там може да стане добър дрешник

това щеше да е по-добре ако можеше да се ползва онази малката кутийка но няма как да минеш от кухнята през WC за спалнята

това е на пръв прочит идеи - не казвам че са хубави - просто още един вариант

Прикачен файл

ремонт.jpg
ремонт.jpg (47.33 KиБ) Видяна 13239 пъти
Тани - модератор
rockwall , благодаря за отделеното време! Това малкото коридорче и ман много ме дразни и най малкото което съм решил да направя е да махна поне междинната врата.
тераса ти тябва в кухнята и от помещението в което е пералнята
това не можах да разбера с каква цел си го написал?

А иначе идеята да направя от непреходен апартамент преходен , честно да ти кажа не ми се нрави Аз съм си нахвърлял някои идеи , но ще изчакам и други да предложат скици , за да не давам готови идеи , а да получа нещо различно! По възможност - две спални и хол с кухненски бокс и поне една тераса! Кофтито е , че тръбата за мръсната вода минава там където е моноблока и няма да има как да преместя тоалетната на повече от 1-2 метра наоколо!
n_a - МАЙСТОРИЩЕ
Answers: 1
...преходен. Зависи как живеете. На мен много ми харесва идеята за студио - общите помещения да са наистина общи. Кухня трапезария и хол да са едно помещение. Най-мразя кухненски бокс в който домакина/домакинята е на заточение, далеко от обществения живот.
Не си уточнил всъщност колко спални искаш.
Имаш възможност "горната" спалня да стане общо помещение, кухнята -спалня, а голяма стая детска.
Тани - модератор
Че съм писал - писал съм! И то в два от трите ми поста в тази тема , а и rockwall го спомена! Искам ДВЕ спални - отделни , непреходни . Не мога да си представя как детето ми ще спи в стаята си , а аз ще превеждам гостите през нея или пък през моята спалня ! А иначе нали точно това ми е идеята бокса да е в хола и да е по скоро като отделен кът !

Имаш възможност "горната" спалня да стане общо помещение, кухнята -спалня, а голяма стая детска.
Нещо такова ми се върти и на мен в главата, но спалнята да е в най-долното помещение! За да има място за гардероби , та може и направо дрешник!
n_a - МАЙСТОРИЩЕ
Answers: 1
Моя грешка за спалните, прости.
14,50квадрата (без усвоен балкон) хич не е малко за спалня. С все гардеробите му. А детето/децата прекарват почти всичкото си време в детската и затова за тях най-голямата стая.
Моето предложение:
Вкарваш балконче в банята и имаш идеална прекрасна душ-кабина. Останалото го редиш както си искаш, и май ще имаш място за пералня и сушилня. Аз харесвам балкони, а така ще прекъснеш връзката между тях и ще пресечеш надничането :wink: .
Кухнята е добре да е с балкон, а детската е добре да е без. Някак по-спокойно е.
За гардеробите - привърженик съм на "вградените" поръчкови мебели.
Дрешник в тези условия не е удачно. Дрешник е добре когато си е с размерите на стая.
Тани - модератор
14,50квадрата (без усвоен балкон) хич не е малко за спалня. С все гардеробите му. А детето/децата прекарват почти всичкото си време в детската и затова за тях най-голямата стая.
Какво имаш предвид под 14,50 квадрата?Размерите на кухнята са 2.88х3.45 което прави 10 квадрата! Като се има предвид че габаритите на спалнята ми с нощните шкачета е 2,30х3,10 не се сещам къде бих могъл да си сложа гардероба . Вярно трябва да е поръчков - таванен :-D :-D :-D Терасата точно за това помещение е немислимо да не се усвои и тогава вече ще стане 2,88х4,60 , което ще е нормално за детска!
За гардеробите - привърженик съм на "вградените" поръчкови мебели.
Дрешник в тези условия не е удачно. Дрешник е добре когато си е с размерите на стая.
Най вероятно гардероба , ако има такъв ще е поръчков . Ще си го поръчам на себе си :-D , а вие ще помагате с идеи! Ако обаче се спра на варианта долната стая да е спалня, то има възможност да отделя "помещение" 1,80х2,80 , което според мен ще е достатъчно!
Честно казано обаче много съм зле от към идеи за дрешника . Дали някой няма представа къде мога да видя снимки на дрешници?

Тема "Разпределение на стаите?" | Включи се в дискусията:


Сподели форума:

Бъди информиран. Следвай "Направи сам" във Facebook:

Намери изпълнител и вдъхновения за дома. Следвай MaistorPlus във Facebook: