Към всяко мнение вече можете да качите снимка. Преди - След
playboy_30 - помощник
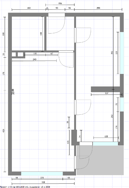
Здравейте!Много се радвам, че същесвува толкова полезен сайт.От скоро съм регистриран, но съм много очерован колко качествени идеи се дават. реших и аз да си кажа моя проблем.Скоро си купих нов апартамент, които е 63 м2/двустаен/. Но епоред мен има възможност да се направи още една детска стая.Ще съм Ви изключително благодарен ако изкажете собствено мнение и ми помогнете да взема най-доброто решение.Пращам ви скица на апартамента.БЛАГОДАРЯ ВИ ПРЕДВАРИТЕЛНО!

Прикачен файл

111.png
111.png (39.63 KиБ) Видяна 5073 пъти
n_a - МАЙСТОРИЩЕ
Answers: 1
Не се научихте да обозначавате важни неща като тръби и канали.
Подозирам, че странното малко помещение долу вдясно с излаз на балкон (може би) е кухня...
Местя кухнята на тъмната стена южно от банята и с това най-голямото помещение става хол-всекидневна с кухненски кът.
Няма възможност за местене на стенчката между двете малки стаи, но правя "вграден" гардероб на мястото на вратата.
По принцип спалнята на родителите е малка (там само се спи), а детската стая се ползва целодневно и е максимално голяма, а и в случая си има отделен вход.
Леко съм против усвояване на единствен балкон, но в краен случай...
p.s. Вратата на банята не е указана, но имаш възможност да е по средата на стената (не е носеща). Така оползотворяваш пространството отляво и вдясно.
prascho - майстор
впрочем разглеждайки схемата стигам до заключението, че кухнята е заедно с хола, щото абсорбатора требва да е включен към комина. Това, което ми направи впечатление е твърде голямата преходност между помещенията. Отделянето, което предлагаш не е лошо, да видим дали ще се хареса и на собственика. Смятам, че би могло да се направи и барплот за да има отделяне на кухнята от хола и да си пийват заедно с жена му ракийката докато готвят и гледат телевизора;) Като барплота е по двете свободни стени, така ще се усвоят пространства за кухненски шкахове.
playboy_30 - помощник
БЛАГОДАРЯ! моята идея е СЪЩО такава в хола да има кухненски бокс, но НАДЯВАХ СЕ да ми дадете съвет за малката спалня.
n_a - МАЙСТОРИЩЕ
Answers: 1
playboy_30 написа:
БЛАГОДАРЯ! моята идея е СЪЩО такава в хола да има кухненски бокс, но НАДЯВАХ СЕ да ми дадете съвет за малката спалня.
В малката спалня - правиш гардероб вдаден в голямата спалня. Имаш възможност да преместиш вратата към хола, ако ти налагат мебелите. За подробности откъм интериор - зависи например какви са вашите лични обеми. Не е един и същ проект за човек като Слави Трифонов и за Иван Звездев, ще се съгласиш.
playboy_30 - помощник
Благодаря N_A.Колеги в работата ме посъветваха тази малката спалня да остане на първо време към хола. Може и така да го оставя за сега, а за гардероба признавам, че е интересна хитринка :) БЛАГОДАРЯ!!!

Тема "SOS PLEASE" | Включи се в дискусията:


Сподели форума:

Бъди информиран. Следвай "Направи сам" във Facebook:

Намери изпълнител и вдъхновения за дома. Следвай MaistorPlus във Facebook: