много съм зле с пейнта,за това ме извинете предварително.
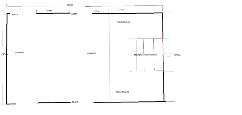
това са скици на стаите в къщата, в която ще живея от лятото.ако някой му се занимава и иска да помогне,очаквам предложения за разпределение и вид на мебелите

това са скици на стаите в къщата, в която ще живея от лятото.ако някой му се занимава и иска да помогне,очаквам предложения за разпределение и вид на мебелите
Прикачен файл
вестибюл [800x600].jpg (16.92 KиБ) Видяна 8213 пъти
Прикачен файл
кухня [800x600].jpg (11.26 KиБ) Видяна 8213 пъти
Прикачен файл
спалня или хол 1 [800x600].jpg (13.64 KиБ) Видяна 8213 пъти
Прикачен файл
спалня или хол 2 [800x600].jpg (10.09 KиБ) Видяна 8213 пъти
