Към всяко мнение вече можете да качите снимка. Преди - След
masteradmin
- майстор
50 мнения в "преустройство на апартамент!?"
Galski
- специалист
- Мнения: 113
Emerald написа:Ами не знам защо се появи желанието да драсна нещо. Засърбяха ме ръцете простоО, виж ти! Подозирах, че си професионалист.
Ще си взема думите назад- понякога консултирали и безплатно.
![]()
Каква беше причината за "подобен род жест"?![]()
Мога ли да те попитам...Архитектите и без това "си оставят ръцете" в проектиране на кутийки, в които после се чудиш как да спечелиш и най-малкия милиметър...
Какво точно печели onion от показаните му твои идеи? Първата е точно копие на неговия план, а на втората кутийките са станали коридорчета.
Надявам се да правиш по-често жестове във форума. Има още много въпроси за преустройство.
От последните две - първата не е точно копие, защото коридора към дневната трябва да е поне 1,10м - и отделно се печели място за гардероб точно срещу входната врата. Това е варианта с минимални промени.
На втората съм спечелила място за дневната и кухнята, за сметка на банята. Вариант с доста промени.
Какво на него ще му хареса е отделен въпрос. По принцип тези идеи си остават в проектанта, ако клиента не е доволен. Но в този случай - те са като подарък
Отделно, че сега ти е много по-лесно на теб Емералд да почнеш да намираш "кусури".
Иначе - да, ще се пробвам да давам съвети, когато мога, но не знам до колко си помагам на себе си
А това, че някои архитекти си оставят ръцете - вярно е. На моменти ме е страм от това, но хора разни.
И аз правя грешки понякога.
А иначе снощи точно си говорехме със съпруга ми, че начина на живот в Америка и Европа е коренно различен. И че подобен род отваряне на цялото пространство си има минуси, които пък тук компенсираме с коридори
Има и тук такива "open space" решения, тях може да видиш по списанията, интериори правени с пари, понякога с много...
И така
Хайде, спирам, че стана много дълго
onion
- специалист
- Мнения: 86
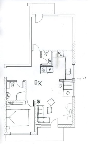
Благодаря на двете Ви специално , също така и на останалите изказали мнение по моя въпрос.
Ще обмислим внимателно всичките идеи.
Иначе ако не изберем нито една от идеите (надявам се няма да се сърдите, оценяваме всичко направено) най-верояно ще махнем само двете стени както е тук, като от лявата страна на пералнята ще има стена от гипсокартон, а трапезарната маса ще е разтегателен квадрат.
Какво мислите за моето "творение"
Ще обмислим внимателно всичките идеи.
Иначе ако не изберем нито една от идеите (надявам се няма да се сърдите, оценяваме всичко направено) най-верояно ще махнем само двете стени както е тук, като от лявата страна на пералнята ще има стена от гипсокартон, а трапезарната маса ще е разтегателен квадрат.
Какво мислите за моето "творение"
Прикачен файл
apart.jpg (21.67 KиБ) Видяна 6860 пъти
Galski
- специалист
- Мнения: 113
onion написа:....Ами по принцип не е невъзможно, но ще изброя минусите, според мен:
Какво мислите за моето "творение"
1. Влизането в банята е възможно най-неудобното от гледна точка на това, че едната спалня е точно до нея. Така като гледам го мислите да е родителската спалня... Ще обикаляте, за да отидете да се къпете...
Отделно, че губиш и място за закачалки, огледало или шкаф за обувки някъде по тази стена.
2. Ще ти трябва изключително мощен абсорбатор за кухнята... но това е неизбежно.
3. Пералнята ще трябва да я скриеш - т.е. вградена да е (по-скъпи са), за мен е грозно да се вижда от дневната.
4. Като готви жена ти, ще се вмирсва абсолютно всичко - особено спалнята... Не съм фен на отворените кухни! Предпочитам да има начин за обособяване. Въпрос на вкус разбира се. У нас бокса е с възможност за цялостно затваряне и изолиране - и работи, въпреки че е отделен от дневната с плъзгаща врата. Няма мирис да се усеща в дневната, няма нищо. Е, вярно, че и абсорбатора е с голяма мощност...
Аз лично бих направила следното: (успех в избора!)
Прикачен файл
с червено - осветление например; пунктира- окачен таван...
кръгла колона, колкото позволява, за да може да се минава...
apart_982-var.jpg (36.36 KиБ) Видяна 6819 пъти
Galski
- специалист
- Мнения: 113
Emerald написа:.....Според мен доста по-трудно е от гледна точка пречупване на установен стереотип и неудобство, обединяването на хол с кухня, отколкото преходни дневна и спална части. Таткото може да спи пред телевизора и в спалнята си, нали така?Това пък е "модата", която толкова да ме дразни... Иначе с кеф бих живяла в американска къща от среден тип... Знам ги много добре!![]()
Честно казано, нямам търпение да бутна един ден няколко стени в родителския тристаен маломерен апартамент- адски подтискащо за мен- чак не ми се прибира по тази причина.В тази връзка имам един въпрос, на който, Галски, вероятно само ти би могла да отговориш.
Ще го изнеса като отделна тема вероятно-отдавна ме тормози.
То май е въпрос на свикване с това в какво живееш... Или ако не успееш търсиш нещо по-голямо. Според възможностите си...
Иначе, давай да видим проблема ти
Тема "преустройство на апартамент!?" | Включи се в дискусията:
Сподели форума:
Бъди информиран. Следвай "Направи сам" във Facebook:
Намери изпълнител и вдъхновения за дома. Следвай MaistorPlus във Facebook:
Имаш нужда от подходящ професионалист за дома?
- Преустройство, ремонт и реновиране
- ↳ Вашите ремонти
- ↳ Кухня
- ↳ Баня
- ↳ Дневна
- ↳ Спалня
- ↳ Детска
- ↳ Градина
- ↳ Коридор
- ↳ Тераса и балкон
- Направи сам
- ↳ Направи сам
- ↳ Ремонтирай сам
- ↳ Къде е по-евтино?
- ↳ Дърводелство
- ↳ Ел. инструменти
- ↳ Металообработване
- ↳ Конкурс "Направи сам 2012"
- Строителство
- ↳ Всичко за вилата
- ↳ Къщи
- ↳ Саниране
- ↳ Хидроизолация
- ↳ Пасивни и нискоенергийни сгради
- Сухо строителство
- ↳ Окачени тавани
- ↳ Преградни стени и предстенни обшивки
- ↳ Сухи и повдигнати подове
- ↳ Декоративни елементи - колони, трегери, сводове и др.
- ↳ Всичко за гипскартона и гипсфазера
- Въпроси и Отговори
- ↳ Полезни съвети
- ↳ Автомобили
- ↳ Партньори
- ↳ Боядисване и Декориране
- ↳ Вентилация, климатици и термопомпи
- ↳ Водоснабдяване и канализация.
- ↳ Всичко за ремонта
- ↳ Електротехника
- ↳ Отопление
- ↳ Газификация
- ↳ Електроника и Схеми
- ↳ Газобетон
- ↳ От всичко по малко
- ↳ Компютри и периферия
- ↳ Уеб дизайн, PHP, MySQL, JavaScript, HTML..
- ↳ Мобилни устройства, GSM-и
- ↳ Нека се запознаем
- ↳ Recycle Bin
- Статии
- ↳ Практични решения
- ↳ Качване на снимки
- ↳ Какви статии искате?
- ↳ Готварство, туршии и зимнина
- ↳ Отмора и шеги
- ↳ От нищо нещо
- ↳ Не е за вярване
- ↳ Литература
- ↳ Връзки към Интересни сайтове
- Магазин
- ↳ Препоръки и Мнения за он-лайн магазина
- ↳ Крадeни инструменти !!!