Колеги,
спешно ми трябва помощ за да разреша един случай.
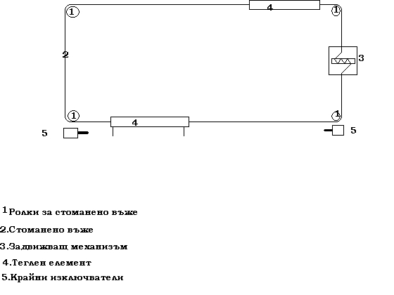
Имаме едно стоманено въже опънато на четири ролки,и пресукано на една ос тази ос ще се задвижва от дрелка(дрелката е с реверсер),понеже се регулират оборотите а и излиза най-евтино. Работата е там,че цялото устройство трябва да се пуска чрез еднократно натискане на старт бутон. За стоманеното въже има закачена количка която се движи по релса.когато тази количка стигне единия от двата края трябва да изключи контактора и да смени посоката на въртене,така че при следващо натискане на старт бутона количката да тръгне в противоположната посока.Трябва да се измисли какви крайни изключватели да се подберат така,че при натискане да прекъснат контактора и да дадът сигнал на реверсер да обърне въртенето.Желателно е крайните изключватели да са 2.Ако не се сещате за такова решение допустимо е да има механизъм на самата количка но трябва да обърне въртенето след като е спряла количката (за да не се върне в обратната посока).
Ще се радвам ако има кой да ми помогне! А и забравих да отбележа,че трябва цялата механизация да е на приемлива цена!
прилагам ви една схема която драснах набързо (много непрофесионална) но трябва да се ориентирате за какво става въпрос.
спешно ми трябва помощ за да разреша един случай.
Имаме едно стоманено въже опънато на четири ролки,и пресукано на една ос тази ос ще се задвижва от дрелка(дрелката е с реверсер),понеже се регулират оборотите а и излиза най-евтино. Работата е там,че цялото устройство трябва да се пуска чрез еднократно натискане на старт бутон. За стоманеното въже има закачена количка която се движи по релса.когато тази количка стигне единия от двата края трябва да изключи контактора и да смени посоката на въртене,така че при следващо натискане на старт бутона количката да тръгне в противоположната посока.Трябва да се измисли какви крайни изключватели да се подберат така,че при натискане да прекъснат контактора и да дадът сигнал на реверсер да обърне въртенето.Желателно е крайните изключватели да са 2.Ако не се сещате за такова решение допустимо е да има механизъм на самата количка но трябва да обърне въртенето след като е спряла количката (за да не се върне в обратната посока).
Ще се радвам ако има кой да ми помогне! А и забравих да отбележа,че трябва цялата механизация да е на приемлива цена!
прилагам ви една схема която драснах набързо (много непрофесионална) но трябва да се ориентирате за какво става въпрос.
Прикачен файл
shema 1.jpg (23.87 KиБ) Видяна 9667 пъти

