Най - вълнуващия въпрос зимно време.
бай Миле - специалист
Здравейте! От известно време ми се върти в главата да си направя леко нестандартна слънчева инсталация за топла вода. Нестандартна защото колектора трябва да е на 6-ти етаж на панелен блок, и няма да е насочен чисто на юг, по-скоро на югозапад - ако трябва да съм точен 56 градуса в посока запад от чистия Юг, демек колектора ще почне да работи след 12 ч до към 19 ч(през юли)Както и да е, ще прикача чертежи който има желание може да ги разгледа и да заимства идеи, или пък ако открие някакви недостатъци, ще се радвам да ги изкоментираме.

Прикачен файл

ситуация.jpg
ситуация.jpg (52.23 KиБ) Видяна 5149 пъти

Прикачен файл

razpredelenie.jpg
razpredelenie.jpg (65.39 KиБ) Видяна 5153 пъти

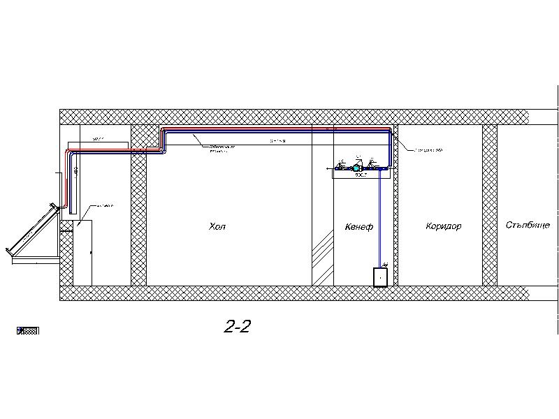
Прикачен файл

razrez 2-2.jpg
razrez 2-2.jpg (56.37 KиБ) Видяна 5154 пъти

Прикачен файл

razrez 3-3.jpg
razrez 3-3.jpg (66.9 KиБ) Видяна 5154 пъти

Прикачен файл

izgled kolektor 3D.JPG
izgled kolektor 3D.JPG (22.87 KиБ) Видяна 5463 пъти
Последна промяна от бай Миле на ср авг 11, 2010 11:02 am, променено общо 2 пъти.
Gek - специалист
Абе ти нали беше бай Лазар!? :? :? :?

Значи който и да си, ето моето мнение. Ако трасето наистина е около 30м. и посоката както казваш не е чист юг то колектора е малък. Според мен при така направената система температурата при датчика на бойлера няма да надвиши 60° в най-горещите дни. Също така ми се струва, че няма нужда от Ф22, по скоро Ф15 - Ф18 макс. Даже не че няма нужда, ами направо си е противопоказно. Дебелината на изолацията също е малка.
С две думи според мен не е проектирана правилно.
Аз бих сложил колектор 2,15м2, тръби Ф15 с изолация 20мм.
Ама това си е мое мнение (на непрофесионалист).

EDIT

И контактор за бойлера не ти трябва. Защото ще си го включваш ръчно иначе нищо няма да стане!
Последна промяна от Gek на пон авг 09, 2010 9:34 pm, променено общо 1 път.
LazarGanev - "Велик майстор"
Не страдам от раздвоение на личността, а от присвояване на аватара ми :). Макар, че го ползвам от години, не ми е проблем да го преотстъпя на бай Миле, ако той мотивирано защити тази теза. Защото знам колко неприятно е за останалите да има няколко усера с еднакъв аватар. Пък по темата ще кажа, че с ф22 тази система почти няма да работи (няма да топли бойлера.
бай Миле - специалист
LazarGanev написа:
Не страдам от раздвоение на личността, а от присвояване на аватара ми :). Макар, че го ползвам от години, не ми е проблем да го преотстъпя на бай Миле, ако той мотивирано защити тази теза. Защото знам колко неприятно е за останалите да има няколко усера с еднакъв аватар. Пък по темата ще кажа, че с ф22 тази система почти няма да работи (няма да топли бойлера.

Колега, извинявам се ще сменя аватара. Искам да си сложа мой си аватар, ама не видях от къде мога да го кача, май има само предварително зададени.
А за тръбата че е прекалено дебела май имаш право, скоростта на топлоносителя ще е прекалено малка.
бай Миле - специалист
Gek написа:
Абе ти нали беше бай Лазар!? :? :? :?

Значи който и да си, ето моето мнение. Ако трасето наистина е около 30м. и посоката както казваш не е чист юг то колектора е малък. Според мен при така направената система температурата при датчика на бойлера няма да надвиши 60° в най-горещите дни. Също така ми се струва, че няма нужда от Ф22, по скоро Ф15 - Ф18 макс. Даже не че няма нужда, ами направо си е противопоказно. Дебелината на изолацията също е малка.
С две думи според мен не е проектирана правилно.
Аз бих сложил колектор 2,15м2, тръби Ф15 с изолация 20мм.
Ама това си е мое мнение (на непрофесионалист).

EDIT

И контактор за бойлера не ти трябва. Защото ще си го включваш ръчно иначе нищо няма да стане!
Тъкмо вчера и на мен ми се завъртя идеята, да сложа колектор 2.15 м2, щото при условие че колектора ще работи само следобяд наистина няма да може да смогне. Единствения проблем е, че мястото е ограничено. Другия вариант е да сложа колектора на покрива и през шахтата дето минават ВИК щранговете в баните да прекарам тръбите до моята баня. Блока е 8 етажен...
Последна промяна от бай Миле на вт авг 10, 2010 10:33 am, променено общо 1 път.
LazarGanev - "Велик майстор"
бай Миле написа:
Колега, извинявам се ще сменя аватара. Искам да си сложа мой си аватар, ама не видях от къде мога да го кача, май има само предварително зададени.
А за тръбата че е прекалено дебела май имаш право, скоростта на топлоносителя ще е прекалено малка.
Извинен си, няма проблеми. Бях готов да ти го преотстъпя, ако си заплашен жената да те остави или магаричката ти да пометне, ако не си с този аватар. Колкото до собствен - преди можеше да се качва, сега не съм проверявал, но спокойно можеш да го качиш някъде другаде и да дадеш линк. Много хора от форума са със собствен аватар. Колкото до тръбата - не е проблем в малката скорост, а в големия обем на трасето в съотношение с обема на колектора - загрятата в колектора вода няма да успее да стигне до бойлера и помпата ще спре, защото колектора ще се е напълнил със студена течност. И така водата ще изстивапо тръбите, а не в серпентината на бойлера.
бай Миле - специалист
LazarGanev написа:
Извинен си, няма проблеми. Бях готов да ти го преотстъпя, ако си заплашен жената да те остави или магаричката ти да пометне, ако не си с този аватар. Колкото до собствен - преди можеше да се качва, сега не съм проверявал, но спокойно можеш да го качиш някъде другаде и да дадеш линк. Много хора от форума са със собствен аватар. Колкото до тръбата - не е проблем в малката скорост, а в големия обем на трасето в съотношение с обема на колектора - загрятата в колектора вода няма да успее да стигне до бойлера и помпата ще спре, защото колектора ще се е напълнил със студена течност. И така водата ще изстивапо тръбите, а не в серпентината на бойлера.
Хм, за това не се бях замислял, хубаво било повече от един човек да го види "проекта" :) А иначе да уточня, 30 м са в двете посоки, демек 15 подаване и 15 връщане, мисля че не е много...
А по отношение да хоризонталните бойлери със серпентина имаш ли някакви впечатления?
LazarGanev - "Велик майстор"
15м ф22 събират 5.7л течност, а в панела има 1.3 или 1.6л, в зависимост от размера. Ти преценявай.
А по отношение да хоризонталните бойлери със серпентина имаш ли някакви впечатления?
Изобщо не ги одобрявам - нито като ефективност на загряване от солара, нито като ефективно използване на топлата вода - много бързо се смесва със студената и се разхляажда. Колкото по-тесен и висок - толкова по-добре
tyrnokop - специалист
Здравейте колеги.
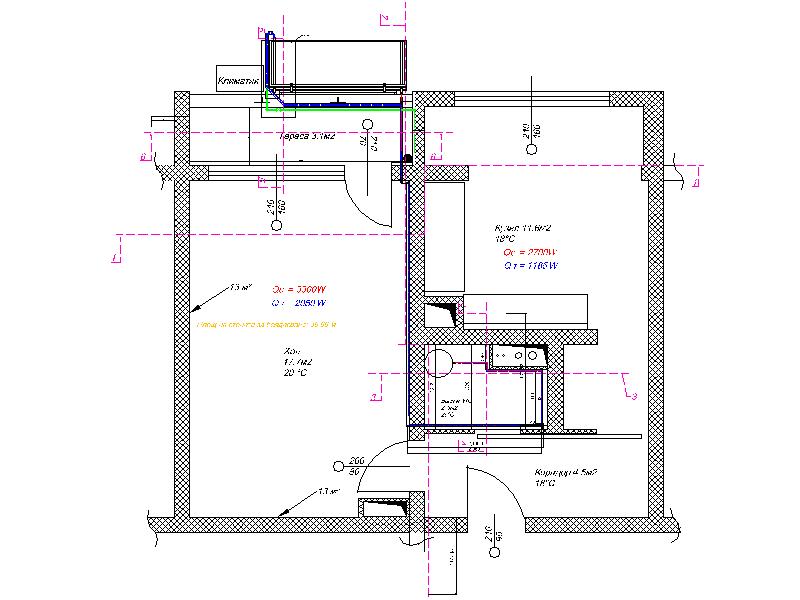
Бай Миле, предстои ми да правя много сходна с твоята система в дома на родителите ми. Етажът е последен -седми, разположението на терасата обаче е чист юг. На последната картинка си показал че тръбите влизат жилищната част на някаква височина от пода. После спускаш ли ги да ги скриеш в пода или ще ги оставиш по стената скрити в кабелния канал (бяла пластмасова кутийка с капаче, което се щраква)?
Многото разкъртване и повдигане на паркет, а после наново пренареждане засега ме спират.

Имам работеща система, като разстоянието бойлер - колектор е 35 м, тръбите са ф12 мека мед, терасата е чист юг, 120 л бойлер. Температурата, която се постига е 50°C.
бай Миле - специалист
tyrnokop написа:
Здравейте колеги.
Бай Миле, предстои ми да правя много сходна с твоята система в дома на родителите ми. Етажът е последен -седми, разположението на терасата обаче е чист юг. На последната картинка си показал че тръбите влизат жилищната част на някаква височина от пода. После спускаш ли ги да ги скриеш в пода или ще ги оставиш по стената скрити в кабелния канал (бяла пластмасова кутийка с капаче, което се щраква)?
Многото разкъртване и повдигане на паркет, а после наново пренареждане засега ме спират.

Имам работеща система, като разстоянието бойлер - колектор е 35 м, тръбите са ф12 мека мед, терасата е чист юг, 120 л бойлер. Температурата, която се постига е 50°C.
Здрасти, колега!
Значи тръбите влизат от терасата в хола през 2 дупки в стената и ще са скрити в кабелен канал 100х40, точно от ония дето се щракват, където си сменя посоката се слагат едни фасонни елементи, става красиво :)
А по отношение на твоя проект, щом си на последен етаж, нищо не ти пречи да сложиш колектора направо на покрива и да пуснеш тръбите през шахтата на ВиК тръбите. При мен това няма как да стане, защото съм на 6-ти от 8 етажа, и над мен има 2-ма комшии, може да се опънат нещо...
За работещата система имам един въпрос, с каква площ е слънчевия колектор? 50 градуса ми се струват малко...

Тема "Моята слънчева инсталация(още на етап "Проект") :)" | Включи се в дискусията:


Сподели форума:

Бъди информиран. Следвай "Направи сам" във Facebook:

Намери изпълнител и вдъхновения за дома. Следвай MaistorPlus във Facebook: