Здравейте, имам следното питане:
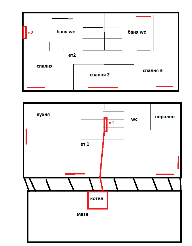
Къща на два етажа по 75квадрата приблизително, котел в мазе което е извън къщата но е на външната стена и под нивото на етажа.
Човека, мой приятел, иска да сложи котел на пелети в мазето. въпросът е че водата трябва да тича в доста различни посоки.
на първия етаж колектора е под стълбите както е видно от картинката, а на втрия етаж колектора е изнесен в единия край на къщата. Къщата е широка близо 13м, притеснява ме че водата за втория етаж може да е малко, тъй като от една страна трябва да иде максимално наляво, а после до най- далечните радиатори и лири максимално на дясно, та това вероятно ще е проблем и се чудя каква помпа да ползваме, височината я смятаме под 6м от мазето до най-горната точка на системата. До колектора на първия етаж има ППР тръби Ф32 които отиват на втория етаж. Незнаем от къде минават трбите тъй като къщата е купена така, на мазилка и шпакловка и тепърва трябва да се прави всичко.
Та моля да кажете как да сметна каква помпа ще ми трябва. или да ми препоръчате някаква. Мислех си за Вило йонос пико, гледам че може да се регулира по диференциално налягане или температура, а това с налягането вероятно ще е удобно когато е топло и половината радиатори са затворени, но ще гони ли достатъчно вода?
И втори проблем, човека иска да сложи рециркулация на топлата, вода така, че да има топла вода на мивката в момента на пускане, в къщата има две бани на втория етаж, кухня и тоалетна на първия. Бойлерът ще е 300л(засега) и ще се намира в пералното помещение. Гледах помпи за циркулация на грудфос за рециркулация на БГВ, но там параметрите са 1,2м максимална височина, друга не намерих, предполагам че ще ползваме обикновена помпа за отопление, това което ме притеснява е че едната баня и тоалетна са точно до бойлера и дали няма да върти на късо през тях. След помпата мисля да сложа възвратен клапанточно преди да го хвана за входа(студената вода) на бойлера.
Ако досаждам се извинявам предварително, моля за коментари основаващи се на опит или поне на нещо подкрепено с доводи, а не да си чешем езиците.
Ще съм благодарен за всеки съвет.
Благодаря.
Къща на два етажа по 75квадрата приблизително, котел в мазе което е извън къщата но е на външната стена и под нивото на етажа.
Човека, мой приятел, иска да сложи котел на пелети в мазето. въпросът е че водата трябва да тича в доста различни посоки.
на първия етаж колектора е под стълбите както е видно от картинката, а на втрия етаж колектора е изнесен в единия край на къщата. Къщата е широка близо 13м, притеснява ме че водата за втория етаж може да е малко, тъй като от една страна трябва да иде максимално наляво, а после до най- далечните радиатори и лири максимално на дясно, та това вероятно ще е проблем и се чудя каква помпа да ползваме, височината я смятаме под 6м от мазето до най-горната точка на системата. До колектора на първия етаж има ППР тръби Ф32 които отиват на втория етаж. Незнаем от къде минават трбите тъй като къщата е купена така, на мазилка и шпакловка и тепърва трябва да се прави всичко.
Та моля да кажете как да сметна каква помпа ще ми трябва. или да ми препоръчате някаква. Мислех си за Вило йонос пико, гледам че може да се регулира по диференциално налягане или температура, а това с налягането вероятно ще е удобно когато е топло и половината радиатори са затворени, но ще гони ли достатъчно вода?
И втори проблем, човека иска да сложи рециркулация на топлата, вода така, че да има топла вода на мивката в момента на пускане, в къщата има две бани на втория етаж, кухня и тоалетна на първия. Бойлерът ще е 300л(засега) и ще се намира в пералното помещение. Гледах помпи за циркулация на грудфос за рециркулация на БГВ, но там параметрите са 1,2м максимална височина, друга не намерих, предполагам че ще ползваме обикновена помпа за отопление, това което ме притеснява е че едната баня и тоалетна са точно до бойлера и дали няма да върти на късо през тях. След помпата мисля да сложа възвратен клапанточно преди да го хвана за входа(студената вода) на бойлера.
Ако досаждам се извинявам предварително, моля за коментари основаващи се на опит или поне на нещо подкрепено с доводи, а не да си чешем езиците.
Ще съм благодарен за всеки съвет.
Благодаря.
Прикачен файл
кътина.png (10.96 KиБ) Видяна 2183 пъти

