Здравейте имам следния проблем , извода за комин във всекидневата ми е на възможно най-централното място срещу дивана, където би било най-удачно да сложа телевизора. Та питанията ми са в две насоки.
1во възможно ли е да се сложи истинска камина/горивна камера на дърва и директно върху нейната конструкция да се закачи телевиора или да се насочвам към декоративна. Ако е възможно- как се прекарват кабелите в такъв случай и какво става с топлия въздух като се отвори вратата.
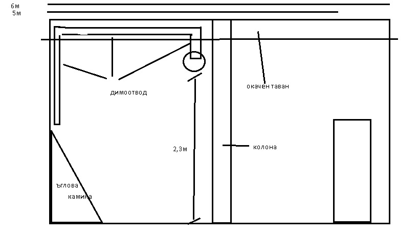
2ро Възможно ли е да изместя камината в ъгъла на около 3м от комина и димоотводите да извървят дълъг път в окачения таван и после да се спуснат около 20см надолу за да влезнат в комина, за да избегна прикриването им с още една чупка под окачения таван. (няма как да изместя отвора на комина по-близко до тавана защото е Шийдел и Т образното тяло вече е поставено на около 30см под тавана(1 тухла по-надолу от последната)) Така димоотвода ще направи П образна чупка преди да влезне в комина. Прилагам няколко скици нарисувани на Paint , дано нещо се разбира от тях
.
Никак не ми се иска да го зазидвам и да слагам декоративна камина.
1во възможно ли е да се сложи истинска камина/горивна камера на дърва и директно върху нейната конструкция да се закачи телевиора или да се насочвам към декоративна. Ако е възможно- как се прекарват кабелите в такъв случай и какво става с топлия въздух като се отвори вратата.
2ро Възможно ли е да изместя камината в ъгъла на около 3м от комина и димоотводите да извървят дълъг път в окачения таван и после да се спуснат около 20см надолу за да влезнат в комина, за да избегна прикриването им с още една чупка под окачения таван. (няма как да изместя отвора на комина по-близко до тавана защото е Шийдел и Т образното тяло вече е поставено на около 30см под тавана(1 тухла по-надолу от последната)) Така димоотвода ще направи П образна чупка преди да влезне в комина. Прилагам няколко скици нарисувани на Paint , дано нещо се разбира от тях
Никак не ми се иска да го зазидвам и да слагам декоративна камина.
Прикачен файл
комин 3.jpg (42.29 KиБ) Видяна 941 пъти
Прикачен файл
комин 2.jpg (24.24 KиБ) Видяна 941 пъти
Прикачен файл
комин 1.jpg (24.8 KиБ) Видяна 941 пъти