Най - вълнуващия въпрос зимно време.
don.nasco - специалист
Здравейте,

Ще правя локално парно с Експерт 20 и RB20, купени са :)

За начало се надявам, че няма да бъда упрекван много с пускането на тази тема. Повярвайте или не, опитах се да си "напиша домашното" преди да я отворя. Изчетох цялата тема за избор на котли, а от темата за пелетната горелка Грейко стигнах до близо 400 от >1300 страници. Както и доста други тема, в които под една или друга форма други потребители са имали въпроси свързани с въпросната конфигурация.

В следствие на изчетеното:
- доста неща ми станаха ясни (за човек, който никога не се е интересувал от подобна тематика);
- доста останаха неизяснени (надявам се, че ще ми помогнете със съвети);
- разбрах, че всеки подобен "проект" е строго индивидуален и на някои въпроси трудно се намира отговор измежду хиляди мнения и коментари.

Точно затова си позволявам да създам тази тема и чрез нея да опитам да открия отговорите, които не съм намерил до момента.

I. Изходни данни:

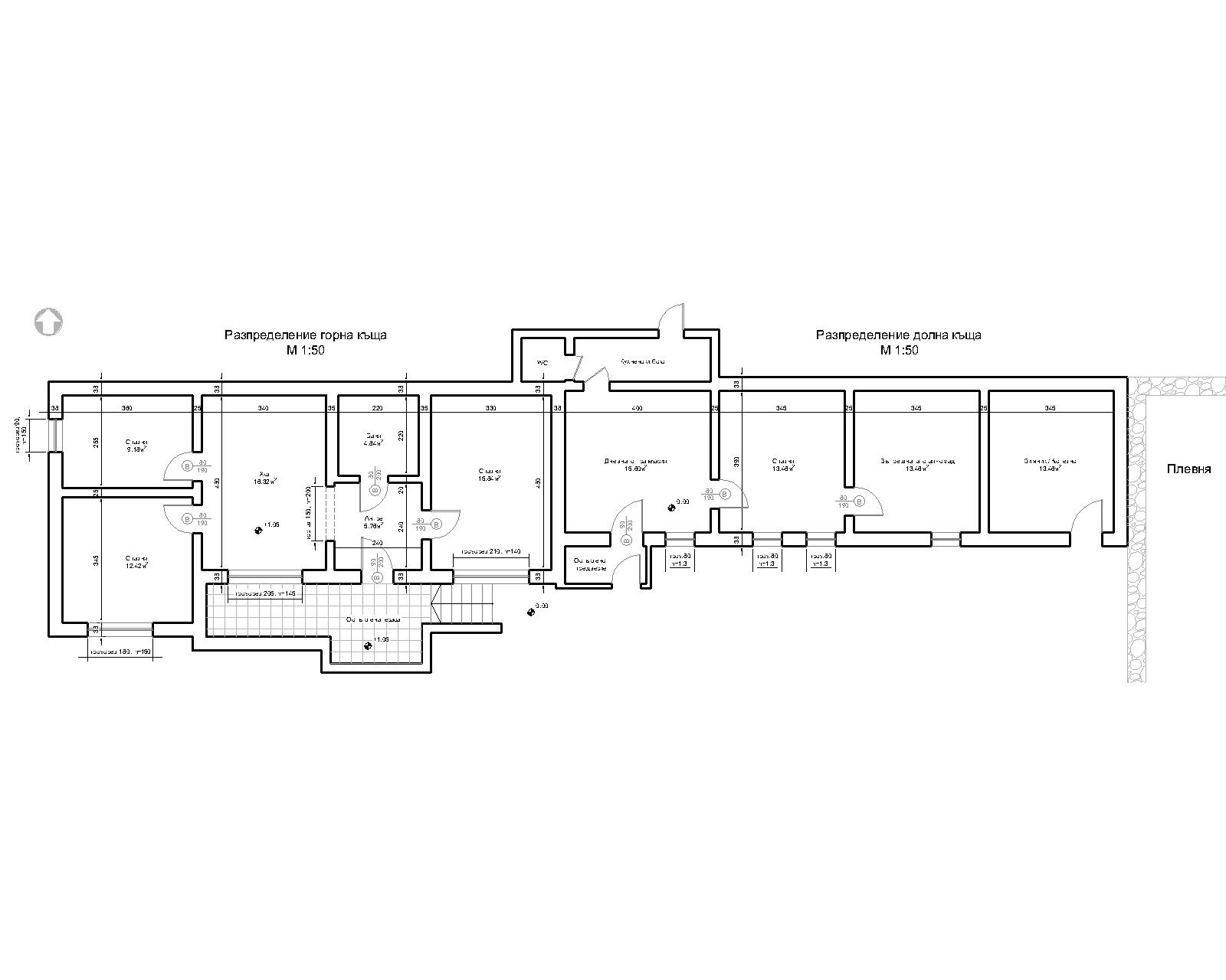
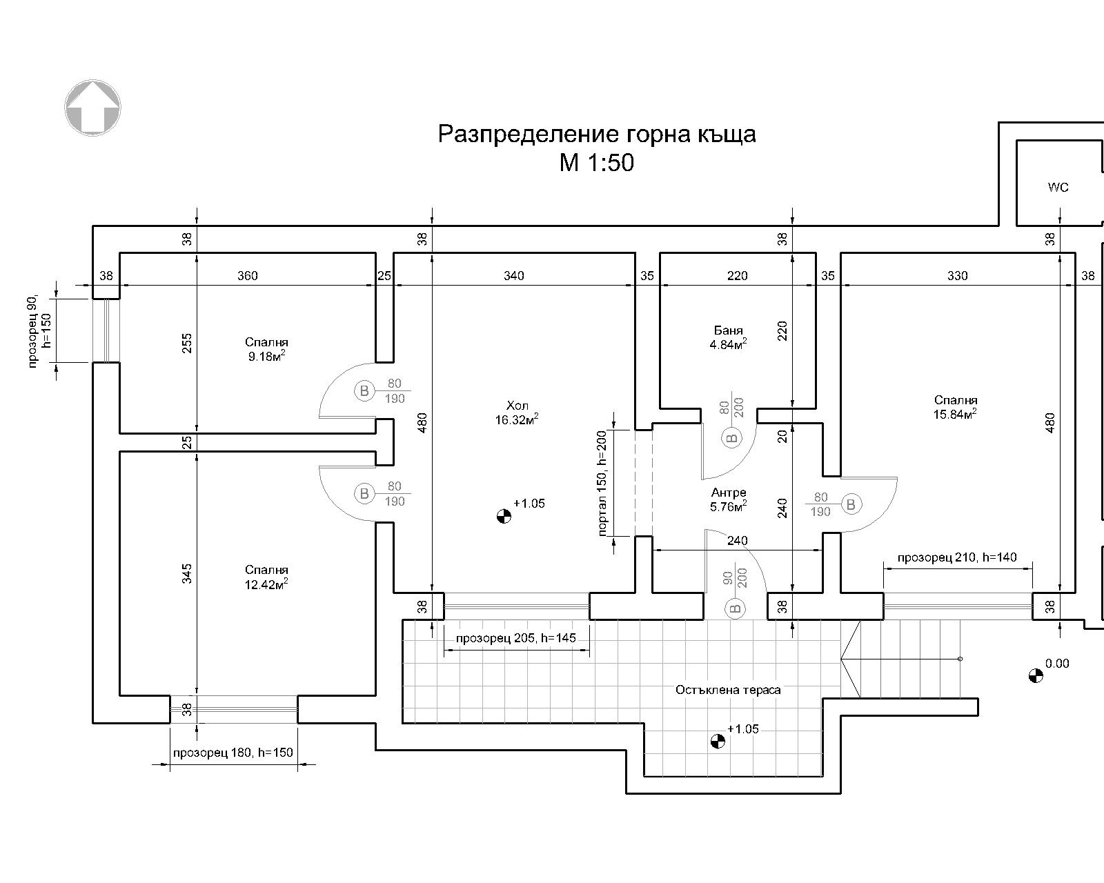
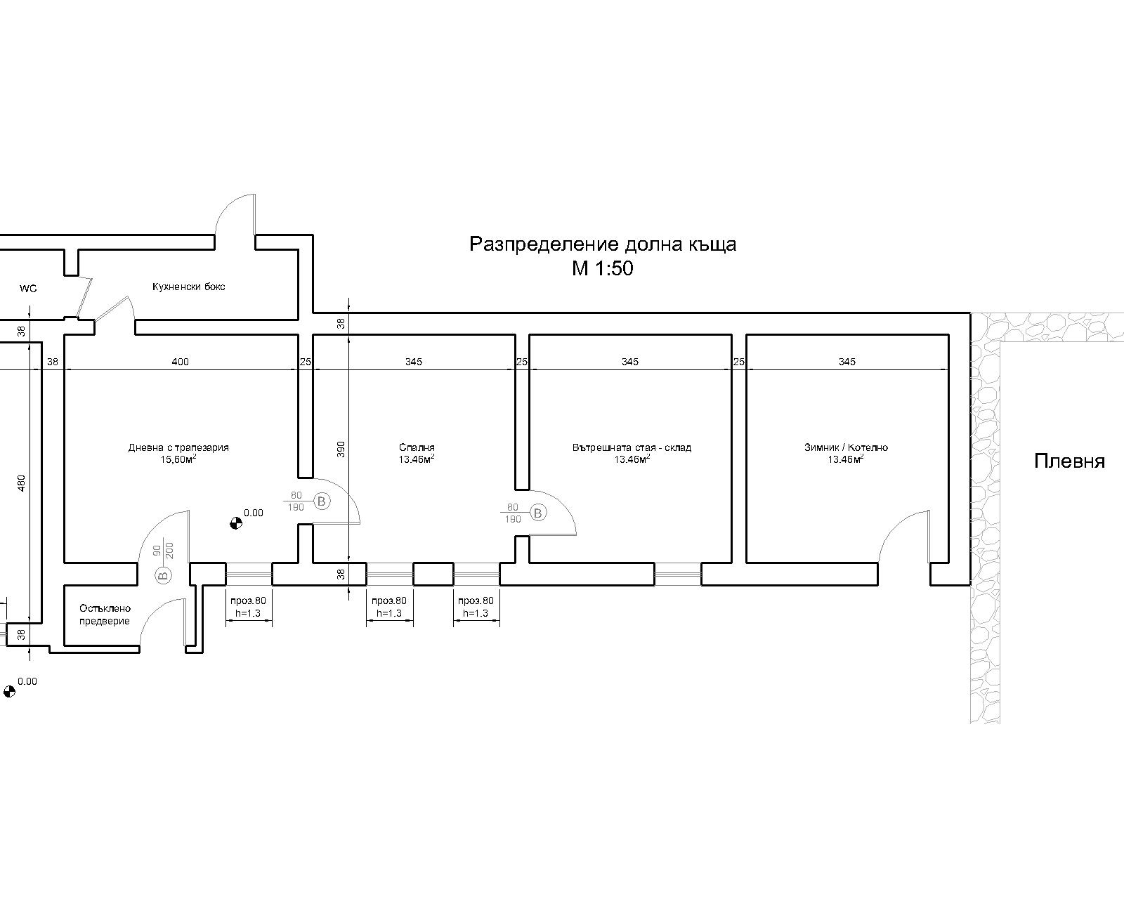
Имота е стара селска къща, който до сега е отопляван с печки на твърдо гориво и ток. Ще откриете няколко скици на къщата прикачени към темата, а в тази таблица съм се опитал да направя сметките за необходимите радиатори/глидери.

Сметките сме ги правили по една (на пръв поглед доста правдоподобна) статия - ето от тук. Притесненията ми обаче идват от факта, че някои от коефициентите, които са заложени в статията най-вероятно не отговарят за къщата. А именно - къщата няма изолация (може би догодина ще й направим), стените са от тухла единичка като зид-а е тухла и половина, това на външните стени. Вторият етаж е върху мазе като под-а е дървен, двоен гредоред, а тавана е "кара" таван - отново дървен засипан с някакви "боклуци" за изолация. Покрива е керемиден. Дограмата навсякъде е сменена и е с двоен стъклопакет, самият профил, мисля че е 5 камерен, но не е много читав.
Стаите на първият етаж са по същият начин, под-а е върху дървено дюшеме върху земята, тавана е кара таван. Някои от вътрешните, преградни стени са кирпичени.
Помещенията са около 2.20 м високи като площта, която ще се отоплява е около 94 кв. м. (тези данни ги има в табличката).

II. Котел, горелка и бойлер:

Както споменах, след четене тук, а и факта, че аз и жената сме Горнооряховски чеда (къщата е в с. Първомайци) много бързо направих избора на котела и горелката. За това спомогна и доскорошната промоция на Грейко.
Тук мога да отваря една скоба и да споделя, че преди да направя таблицата с изчисленията действах доста по-спонтанно и "сметнах топлозагубите" на принципа 150-170W на квадратен метър. После, разбира се седнах да чета повече и достигнах до създаването на самата таблица. Та от двете неща съвсем лаишки заключих, че 20kW-ят комплект ще ми е напълно достатъчен, затова и избързах със закупуването му, въпреки че все още не съм сигурен, че изчисленията ми на топлозагубите са верни.
Та, тази скоба беше за тези от Вас, които веднага ще попитат ама как така си купил котел, горелка без да си имаш представа какви топло-загуби имаш. (да, може и да съм сбъркал :) )
Към системата ще има (също е купен) 200 литров бойлер на Теси, свободно стоящ с две серпентини. (живот и здраве на пролет може да му монтирам слънчев колектор)
Както се вижда от схемите на къщата, котелното ще бъде в най-дясното външно помещение на къщата, зимника, а бойлера ще трябва да е в мазето. Там ще бъде и разпределителният колектор за всички радиатори от вторият етаж на къщата.

III. Схема на свързване:

Към котела и горелката има принципни схеми на свързване, това може би всички собственици го знаят, а и не само. Тези схеми обаче са доста "постни", въпреки че до голяма степен разбирам защо производителя не се е ангажирал да даде по-подробни схеми - а именно, всяка инсталация е сама за себе си индивидуална, а тяхната работа е да произвеждат котли, горелки, камини. Може би и аз на тяхно място не бих се ангажирал да давам подробни схеми, за да няма после "ама те ми казаха така да направя" :)
Та, схемата на свързване, до която аз успях да стигна и смятам, че би ми свършила работа в моя случай е крайният вариант от ето тази тема тук, на потребителя live1102 (благодарност, че я е публикувал).
Все още продължавам да имам някакви "вътрешни" колебания дали точно тази е моята схема, примерно липсата на трипътен вентил, но въпросите ще ги задам по-долу в секцията Въпроси.
Намерих и друга подобна схема (прикачам я тук, защото намирането й беше свързвано буквално с прелистването на всички страници от темата за Грейко), която доста прилича на тази на live1102, но е с повече подробности, относно използваната арматура, тръби и не само, а това поне за мен е доста ценно.

IV. Въпроси:

Направо ще ги напиша :)

1. Правилно ли съм сметнал броя и разпределението на радиаторите/глидерите? Удачно ли е да използвам H350 глидери?
Избрал съм H350, защото както споменах, помещенията в имота не са много високи, имат сравнително големи прозорци и проблема е, че разстоянието между пода и перваза на прозореца за повечето стаи е около 55 см. (дори в "Синята спалня" по-малко и там може би няма да мога да събера радиатора да бъде точно под прозореца).
Всички радиатори ще бъдат с термоглави без лирата в банята, а си мисля да сложа и стаен термостат в Дневната на първият етаж - това е помещението в което постоянно се влиза, излиза и може би е най-студеното в къщата. Там по принцип стоеше едната печка на твърдо гориво.

2. Какви тръби и с какъв диаметър да използвам от котелното (зимника) до мазето (разпределителният колектор и бойлера)? Както можете да видите разстоянието ще е около 15-18 метра в зависимост от пътя.
Това, което разбрах е, че за предпочитане е тръбите да бъдат полипропилен с фибростъкло (отколкото Pex-Al-Pex), като до разпределителният щранг мисля да са ∅32, а тези за бойлера ∅26. Трасето на тръбите може да бъде по дължина от зимника до мазето както от северната страна (до стената) на стаите, така и от южната, до прозорците.

3. Какви тръби да използвам от разпределителният щранг до радиаторите?
Тръбите ще вървят в мазето и ще излизат над всяка стая. Ако правилно съм разбрал е хубаво разпределителният щранг да бъде на равно разстояние от всеки радиатор. Мисля си да използвам Pex-Al-Pex тръби с ∅16 като за най-западните спални може би ще се наложи да се пуснат ∅20, защото разстоянието до тях ще е по-дълго, под тях няма мазе (едно време там е имало "вкопан" дюкян, който в последствие зариват)

4. На първият етаж ще има само две стаи с радиатори, първата стая (Дневна) и спалнята до нея. Възнамерявам двата радиатора там да бъдат закачени директно (успоредно) към трасето от зимника до мазето (мисля, че трябва да го нарека "хоризонтален щранг"). Виждате ли проблем с подобно свързване?

5. Какви две помпи ще ми препоръчате да взема за тази инсталация (марка/модел)?
Признавам си, това с дебита на помпите не успях да го разбера :). Марките до някъде ги знам - Wilo или Grundfos, поне това се пише тук из темите. Определено ще ме улесните ако посочите "верните" за мен и аз само да ги купя и монтирам :)

6. Как би изглеждала схемата на live1102 с включен трипътен вентил? Усещането ми е, че трябва да се включи долу в дясно между филтъра и спирателният кран.
След добавянето на трипътният вентил трябва ли да се добави и още някаква арматура?

7. Ако се досещате, студената вода в къщата тръгва от мазето. Възнамерявам системата да бъде пълна с вода и пълненето да се извършва именно от мазето. Това ли е правилният начин? От каква арматура (кран или нещо друго) ще имам нужда?

8. Какъв разширителен съд ще ми е необходим? Някъде мярнах, че той се изчислява въз основа обема на инсталацията, който все още не го знам. Предполагам, че ще мога да го сметна след като системата е завършена и знам всички участници в нея какъв обем течност поемат.

Май за сега са това.

V. Заключение:

На първо място искам да благодаря на всеки, който ще отдели от времето си да изчете темата. Надявам се, че няма да ви отегча много с написаното и няма да ви раздразня с въпросите си.
Вярно е, че в този раздел има изписано адски много и сигурно въпросите ми някога и някъде са били отговаряни, но намирането/търсенето не е толкова лесно. Наистина се постарах да си "напиша домашното" (или поне аз така усещам нещата).
Ако съм пропуснал да дам някаква информация или имате уточняващи въпроси, с радост ще се постарая да им отговоря.
Поздрави и бъдете здрави!

С уважение:
Атанас

Прикачен файл

kotelno.png
Схема котел, горелка Грейко
kotelno.png (28.92 KиБ) Видяна 2316 пъти

Прикачен файл

3.jpg
първи етаж с котелно, което ще е в зимник-а
3.jpg (100.68 KиБ) Видяна 2316 пъти

Прикачен файл

2.jpg Втори етаж над мазе

Прикачен файл

1.jpg
Цялата къща
1.jpg (108.17 KиБ) Видяна 2316 пъти
don.nasco - специалист
Хмм, никой ли няма да се осмели да каже поне "Здравей" :roll:
Здрасти Доне,
На подобни (но елементарни) първи постове, обикновено отговорът ми е- Ай.....почети, барем да си подготвен малко, или направо "чиба".
Ма ти си подготвен, постарал си се, та...
Здравей отново, на прав път си!
Късничко е, да препрочитам и конкретно да пиша, но засега толкос.

Дон Танатос, изборът на котел, като производител и мощност е удачен, според мен, както и бойлерът.
Нямам очи, по това време, да видя разстоянията, преценя котелно, зимник и т.н. но "колеги" дебнат в засада и ще помогнат.
don.nasco - специалист
Здравей Трифон,

Точно от теб се надявах да бъде първият пост в тази тема! Адмирации!
От всичкото изчетено в този раздел на форума имам чувството, че Ви познавам :)

Аз побутнах малко темата умишлено, нямам много бърза работа, но просто исках да ви провокирам - някой да каже нещо, барем разбера дали съм на прав път или съм тръгнал грешно.

Много благодаря че писа, даваш ми надежди.
Искам да ти пожелая една спокойна вечер, наздраве!
Само един съм, макар че, според мнозина, пиша безразборно.
Дано се включат и специалисти! Забелязвам, че при по особени казуси, обикновените заподозрени обикновено се скатават, а после не мож ги спря.
Дано е спокойна за всички!
abcdefghijklmnopqrstuvwxz - майстор
Привет, Наско!
Поздрави от Първомайци 1.
Ако е по електрониката, да помогна.
По въпросите нямам какво да споделя, не са в компетенцията ми.
Успех ти желая!
andy_forresite - майстор
За мен коеф. на топлопреминаване на външна стена не може да е по-малък от този на вътрешна. В случая 0,35 и 0,50. Външният зид може да е 38 см, а вътрешният 15 с мазилките, но пак не може да е вярно. Когато вътрешната стена граничи с отоплявано помещение, нейният коефициент на топлопреминаване не те интересува (не изчисляваш с него). Сега 25° в едната стая и 22 в другата, много важно, тъй като всеки се запасява с радиаторни глидери над изчислените. Така че топлозагубите не са тези, а по-големи.
Второ, пак според мен, но то е следствие на първото, тези радиатори са малки. Приблизително приемам, че един Н350 отдава 57W. Според условията може да отдаде повече, а може и по-малко, но за изчисляването на необходимата радиаторната мощност, стойността 57/58 е добра. Примерно в първата спалня (Ива) аз бих монтирал не 12, а 18 глидера. Отдават около 1000 вата. За експеримента просто сложи една електрическа печка 1000 вата в тази спалня и я включи след като си проветрил добре. Виж как реагира на затоплянето и след колко време ще стане колкото желаеш топло. Колкото по-хладно е навън по време на експеримента, толкова по-добре.

Оптимално би било тръбата от котела до колектора да е 1 1/4, колкото са и присъединителните размери на грейко котлите с мощност 20 kw. Тоест медна ф28 тръба ще стигне. Тя отговаря на ф40 ППР. Според мен тръба за отопление, в която няма алуминиева вложка, не е подходяща за отоплителна система. ППР с фибростъкло няма вложка.
От колектора до радиаторите пускай pex-al-pex тръби, class 5. Не знам за теб, но аз си взех колекторчета за ф20 и пускам ф20. На две от линиите съм прикачил по два консуматора. По-точно бойлер 80 литра и алуминиеви 20 ребра Н500 и на другата линия два панелни радиатора с обща продажбена мощност 5300W.

На въпрос № 5 бих - бих избрал Grundfos Alpha 2L 25-60 180 за малкия кръг на "студената" вода и такава, но 25-40 180 - преди колектора, на топлата вода.
Въпрос № 7: Пълненето трябва да се прави от тръба за охладената вода, да се пълни бавно с отворени обезвъздушители (където са ръчни). Монтираш си кран от водопровода на къщата с тръба, която свързваш с тръба за връщащата се вода (охладената) на системата. Не си взимай автоматична пълначка.
Въпрос № 8 - аз бих заложил на 24 литра разширителен съд за затворена с-ма, макар и 19-ка да е достатъчен за теб. Зависи какви тръби ще сложиш и колко глидера ще монтираш.
morfei1 - специалист
нед окт 11, 2020 10:16 pmdon.nasco написа:
Сметките сме ги правили по една (на пръв поглед доста правдоподобна) статия - ето от тук. Притесненията ми обаче идват от факта, че някои от коефициентите, които са заложени в статията най-вероятно не отговарят за къщата.
Щом обичаш да смяташ и не бързаш, този калкулатор ще те ориентира в обстановката. Чел си статията, ясно ти е как се смятат загуби:

ТЕРМОКАЛКУЛАТОР

И да не си с точността на ОВК проектант, ще си много близо до истината. Можеш да изчислиш, какви загуби имаш в момента и какви евентуално след изолация и т.н.т.
andy_forresite - майстор
0.35 е нереално нисък коефициент за външна стена. Може след стиропор 8 см да стане толкова. 1.5 е много по-реален. Също така не знам как е определил каратавана, след като аз не можах да го намеря никъде това нещо :) . Така по усет такъв таван 15 санта го приемам за 1 (единица). Това 0,3 е много много ниско за такъв таван ...
Каратавана си е супер. Не зная колко точно е, но преди да го бутнем, каменната ни крепост беше топла през зимата и хладна през лятото.
Анди, как ти се струват 2 реда рогозки, замазани с глина, омешана със слама, топъл таван, също с 2 реда рогозки, кал със слама и турски керемиди?
Трябва да си живял в такова нещо, да си го видял (собственоръчно го развалих), за да можеш да го оцениш.
Сега, ако не са дадени пари за синтетика, къщата е хладилник или инкубатор.

Тема "Изграждане на локално парно с Грейко" | Включи се в дискусията:


Сподели форума:

Бъди информиран. Следвай "Направи сам" във Facebook:

Намери изпълнител и вдъхновения за дома. Следвай MaistorPlus във Facebook: