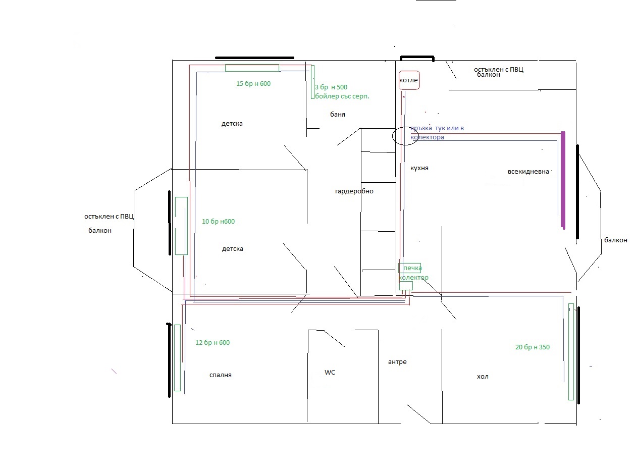
Здравейте, предстои ми газифициране и имам малка дилема дали ще уцеля подходящия котел и дали сегашната инсталация ще е подходяща за него. Досега съм се отоплявал с камина Прити уж 16 кв. която затопляше 4 радиатора и един бойлер, съответно 39 ребра Н600 , 3бр Н 500 , 20 бр Н 350 и 80лт бойлер. За да се поддържа оптимална температура в жилището (110 кв. Н 2.50 с изолирани тавани и външни стени и ПВЦ дограма ) изходящата Т от камината обикновенно е била 60 градуса. Там където е камината има само един радиатор 20 х Н350 (хола) като квадратурата е 39 м2. При монтирането на котлето в кухнята до прозореца искам да сложа още един радиатор (в лилаво ) за да мога да отоплявам обединените стаи , тук въпросът е къде да го свържа с разклонение или в колектора , удачно ли е монтиране на вентил конвектор вместо алуминиев ? Другия ми въпрос е какъв котел ще е подходящ за тази инсталация и има ли нужда от преправяне. С така направената инсталация без /лилавия радиатор/ температурата в жилището е 22 градуса във всекидневната и 19-20 в спалните. Предполагам котела ще е двуконтурен понеже лятото ползвам слънчев колектор с отделен бойлер а зимата друг вързан към котлето който ще отпадне. Относно мощността на радиаторите по ΔТ от това изказване
( За да определите „Делта Т- радиатор”, трябва от температурата на водата - 60 C⁰, да извадите температурата на помещението - 25 C⁰ и получавате „Делта Т- радиатор” 35 C⁰. Да приемем, че сте се спрели на глидери H500 с топлоотдаване 113W при „Делта Т” 50 C⁰. За да определите колко би отдавал този глидер при „Делта Т- радиатор” = 35 C⁰, можете с известна лека неточност да разделите 35 C⁰ на 50 C⁰, след което да умножите с 113W и да получите 79,1W от глидер.)излиза, че моята ΔТ е 30 което по сметки излиза около 4240 W а по ΔТ 50 около 7700 W, малко невероятно ми звучи но,доста теми изчетох и си изградих долу горе избор, но ако не възразявате ще се радвам на вашите отговори и критики.
Прикачен файл
Без име.jpg (101.48 KиБ) Видяна 1396 пъти
