• 1
  • 2
  • 3
  • 4
  • 5
  • 14
Най - вълнуващия въпрос зимно време.
dobrev - специалист
Пускам отделна тема защото в темата"Буфер" не получих отговори. Още една система/моята/ по схемата в темата "Буфер". Всичко работи перфектно по предварителния замисъл. Използвани трипътни вентили на HERZ с изнесена с капилярна тръбичка сонда. Забелязани недостатъци:
1. Малък буферен съд /250л/. Все пак съм вкарал в него 10м медна серпентина, която ще се топли от слънчеви панели с площ около 4 кв.м и отделна помпа и управление.
2. Малък дебит на помпата на котела. Когато се включи втората помпа тя поема цялата топла вода и част от студената в буфера докато не се стоплят радиаторите.
3. Водата започва да ври ако наглася клапата на котела над 60гр. и трипътния вентил на първия кръг над 40гр. Предполагам, че се дължи отново на малкия дебит на помпата на котела. Имам и друга по мощна помпа, която да закача за проба.
Инвестицията в един буфер 1000л е приблизително колкото цената на пелетна горелка, която да монтирам на моя котел. Въпрос :?: към хората с повече опит: Кое ще е по добре, нов буфер и да продължа да си гълтам по малко пепелака от въглищата или пелетна горелка и да се надявам, че сегашния буфер / 250л/ ще е достатъчен?

Прикачен файл

инсталация.JPG
VLADO66 - майстор
Горе на колко си ги редуцирал тръбите и какво отопляваш?
dobrev - специалист
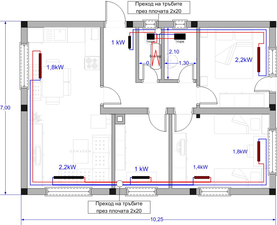
Отоплявам само горния етаж 70 кв.м и инсталацията изглежда така:

Прикачен файл

Къща.jpg
Къща.jpg (105.87 KиБ) Видяна 3835 пъти
kalin72 - майстор
Според мен буфер, един колега тук продава 750 литров бойлер за много добри пари.
alex_serviz - специалист
Един път опитай без мизерията на въглищата и никога няма и да си помислиш да се върнеш назад към тях!
Това е мое мнение. След 10 години на въглища минах на пелетна горелка от миналия сезон и не съм съжалил за въглищата нито веднъж!
bigdragon - майстор
Заглавие: По голям буфер или пелетна горелка?
Имам селска къща с голям двор и много място за дърва, т.е. не гълтам въглищен прах... :supz:
Аз пък съм с буфер 1000 литра и си го харесвам.
Не защото продавам буфери, а защото ми е по евтино.
Буфера струва колкото горелката, но горивото след това е два пъти по-евтино... :party:
alex_serviz - специалист
Аз слизам един път на ден за 2 минути да изхвърля пепелта и да допълня бункера ( ако е необходимо ). От тази гледна точка не бих се върнал към въглищата никога. Ако гледам само по-евтиното, то най-евтино е с нищо да не се грея, но пък няма да живеем 1000 години. Все пак всеки си има различни приоритети, ценности и т.н.
Здраве да е!
dobrev - специалист
При студена зима изгарям по 2 тона и половина въглища по около 400лв са си 1000лв за сезон. :?
alex_serviz - специалист
На пелети общата сума ще е съизмерима с тази на въглища ( като изключим стойността на горелката, разбира се! ). За удобството - не коментирам! Най-добре говори с някой, който е минал от въглища на пелети и сам ще си решиш!
Аз поне не се сещам за нито един, който да се е върнал от пелети, отново на въглища!
digitalpr - специалист
С 1000лв можеш да купиш точно 3 тона пелети. Ако мислиш, че ще ти стигнат моя съвет е мини на пелети. Според мен трябва да ти стигне това количество. Ако не, то ти прецени колко си склонен да доплащаш, за да имаш комфорта на пелетите. Аз години бях на въглища и дърва, а от три години съм на пелети. Никога повече не искам да се връщам на въглища, нещата са просто несравними.
  • 1
  • 2
  • 3
  • 4
  • 5
  • 14

Тема "По голям буфер или пелетна горелка?" | Включи се в дискусията:


Сподели форума:

Бъди информиран. Следвай "Направи сам" във Facebook:

Намери изпълнител и вдъхновения за дома. Следвай MaistorPlus във Facebook: