Най - вълнуващия въпрос зимно време.
N.Petkov - специалист
Здравейте, през тази зима се оказа че само със камината бавно се затопля вилата и реших да започна леко по-леко да направя парното. Ще ми е нужна вашата помощ за да се получи добър краен резултат и безпроблемна работа на системата, защото всяка парна инсталация е индивидуална за дадената сграда и колкото повече информация събирам започвам да се губя в нея .
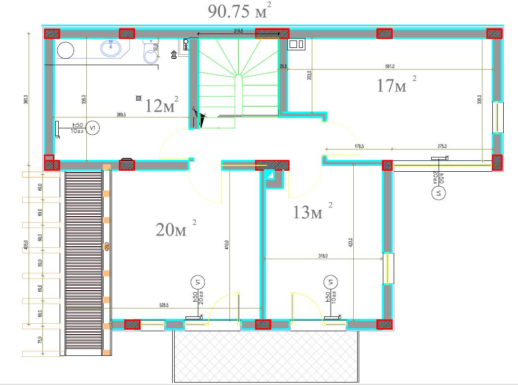
Вилата(то си е къща) я строя с идея след няколко години да се изнесем да живеем там. Два етажа по 90кв.м. ще прикача накрая скици, на първия има стая 14кв. Хол с кухня и коридор кв. Баня 5кв.и котелно 4кв.височина 2,65см. На втория 3 стаи 20,17,13кв. И баня 12кв. Едната стая и банята не са довършени оставил съм ги за по-нататък. По къщата след грубият строеж и мазилките правя всичко сам.
За инсталацията съм положил в замазката тръби 16мм с алуминиева вложка за всеки радиатор по отделно от котелното където ще бъдат колекторите и медна тръба 32 от котелното до банята на вторият етаж където ще бъдат колекторите и от там тръби до радиатори. И съм заложил две медни тръби 25 за слънчеви колектори от котелното до източният край на къщата.
Имам алуминиеви радиатори Н50 които не са монтирани, за първият етаж съм ги разпределил за стаята 20гл. В хола 1 радиатор 20гл. Н50 и два Н35 по 20гл. На вторият в двете големи стаи по 1 радиатор 20гл. А в малката и банята по 1 радиатор 10гл. Просто така ги купих сглобени на по 10гл. Ще трябва да купя лира за банята на първият етаж.
Къщата се намира на южен склон 900м. Надморска височина на 16 км. от Самоков оринетирана на югозапад ПВЦ дограма с двоен стъклопакет изолация от 6см. Стиропор отвън и варова мазилка с шпакловка вътре.
За гориво ще ползвам дърва тъй като са най-достъпни и на много добра цена.
Материалите ще купувам от ИНТЕРМЕТАЛ където ползвам отстъпки през познат
Това е ситуацията и почват въпросителните! Понеже котелното е малко а в него ще трябва да се съберат котела и буфер след дълго търсене на компактен котел намерих този турски CALTHERM S коминът излиза от горе и зад него ще може да се работи спокоино.Цената също е фактор защото следващите няколко години ще се ползва главно уйкендите и след това когато заживея постоянно може да се смени. Това на първо четене. Сестра ми има чугунен SIME и несъм очарован от него.Буфер не мога да събера по- голям от 500л. Трябва да е с две серпентини та догодина или когато смогна да свържа и слънчев колектор.
Моля за съвети и насоки как и с какви материали да изградя системата за да ми служи вярно!

Прикачен файл

et1.jpg
et1.jpg (106.83 KиБ) Видяна 2048 пъти

Прикачен файл

et2.jpg
et2.jpg (92.19 KиБ) Видяна 2048 пъти

Прикачен файл

20150201_103136.jpg Къщата
rosso666 - специалист
Здравейте колеги.имам следното питане:имам една неотопляема малка стая,която реших че е по добре да стане отопляена.Проблема е че В КОЛЕКТОРИТЕ не може да се включи още един радиатор.идеята мин е да вкюча лирата към съседна на стаята лира.
надявам се от рисунката да стане ясно как искам да стане.Въпросат ми е ще стане ли ???? и ще топли ли ако така се свърже.

Прикачен файл

лири за баня.png
лири за баня.png (15.5 KиБ) Видяна 1868 пъти
N.Petkov - специалист
Здравейте отново, радиаторите който имам са с дълбочина 80мм. и по груби сметки общата им мощност е 19кв. плюс 1кв.
лира в банята стават 20кв. + буфер 500л.(за неговата консумация не намерих данни) достатъчен ли ще бъде котел 24кв.
и каква помпенна група ще ми препоръчате- Regumat RTA или Laddomat 21-60. :?
:) Благодаря предварително на всички отговорили!
kalin72 - майстор
Нали знаеш функцията на тези помпени групи? Те са за осигуряване на връщатата вода към коета да е най-малко 55 градуса.
Инак и двете са ОК. Аз имам Ладомат-а.

Тема "изграждане на парна инсталация" | Включи се в дискусията:


Сподели форума:

Бъди информиран. Следвай "Направи сам" във Facebook:

Намери изпълнител и вдъхновения за дома. Следвай MaistorPlus във Facebook: