Най - вълнуващия въпрос зимно време.
alex_sas - помощник
Здравейте,
изчетох доста от форума по отношение на отоплението и вече съм убеден, че ще се спра на камина на пелети с водна риза и подово отопление. Става въпрос за подово около 70-80 кв. м. + бойлер 250л с две серпентини, едната ще е от камината, другата от слънчеви панели. Та конкретните ми въпроси са:
1) Тази камина дали е достатъчно мощна за целта?
2) Кои фирми препоръчвате за изграждането/оразмеряването на инсталацията? (за предпочитане на ЛС, за да не става реклама)
3) Добре ли да се изкарат допълнителни изводи за радиатори(на отделни кръгове) или подовото ще е достатъчно за отопление(сградата е санирана изцяло)? Настилката върху подовото ще е гранитогрес.
saraneron - специалист
alex_sas написа:
Здравейте,
изчетох доста от форума по отношение на отоплението и вече съм убеден, че ще се спра на камина на пелети с водна риза и подово отопление. Става въпрос за подово около 70-80 кв. м. + бойлер 250л с две серпентини, едната ще е от камината, другата от слънчеви панели. Та конкретните ми въпроси са:
1) Тази камина дали е достатъчно мощна за целта?
2) Кои фирми препоръчвате за изграждането/оразмеряването на инсталацията? (за предпочитане на ЛС, за да не става реклама)
3) Добре ли да се изкарат допълнителни изводи за радиатори(на отделни кръгове) или подовото ще е достатъчно за отопление(сградата е санирана изцяло)? Настилката върху подовото ще е гранитогрес.
Покажи как си смятал за тази площ, да преценим дали е вярно .Това е по-добрият варият а не да гадаем ,изолации ....прзорци.... тавани ,на първо четене е добре!Но това поглед от комшията!
syncho - майстор
alex_sas написа:
Здравейте,
изчетох доста от форума по отношение на отоплението и вече съм убеден, че ще се спра на камина на пелети с водна риза и подово отопление. Става въпрос за подово около 70-80 кв. м. + бойлер 250л с две серпентини, едната ще е от камината, другата от слънчеви панели. Та конкретните ми въпроси са:
1) Тази камина дали е достатъчно мощна за целта?
2) Кои фирми препоръчвате за изграждането/оразмеряването на инсталацията? (за предпочитане на ЛС, за да не става реклама)
3) Добре ли да се изкарат допълнителни изводи за радиатори(на отделни кръгове) или подовото ще е достатъчно за отопление(сградата е санирана изцяло)? Настилката върху подовото ще е гранитогрес.
Здравей, отговарям както следва:

1. Да - както казваш и че е санирана сградата няма да имаш абсолютно никакви проблеми с мощността.
2. В кой регион на България се намираш?
3. Мисля, че няма да има нужда от изводи за радиатори. Сега изпълняваме подобен обект, но с частично подово на апартамент и клиента държеше да си пусне изводи за радиатори там където има подово, които изводи съм убеден, че няма да му се наложи да използва.
alex_sas - помощник
Забравих да напиша, че става въпрос за апартамент в София. Идеята ми е да се направят 5 кръга подово с тръби ф20 и 6ти кръг за бойлер. Интересува ме дали печката, която съм избрал ще се справи и дали ще има капацитет за 3-4 радиатора по 1 - 1.2kw. Естествено добре е да има и някакъв резерв мощност, а не да работи на максимум. Не искам и да взема нещо прекалено мощно, което пак няма да върши работа.
Има ли таблици за изчисление на мощността на консуматорите. Гледах разни таблици за радиатори, но ми се струват малко завишени, може би търговски трик. Иначе като смятам по тях би следвало всичко да излезе около 12kw, т.е. без радиаторите печката би се справила.
LazarGanev - "Велик майстор"
Печката може да отоплява двойно повече от това, което си писал
filmatoplo - майстор
При първоначален старт заедно с БГВ , мощността е добре , след това камината ще работи на 1/3 от мощността .По принцип интересна комбинация -нискотемпературно подово , високотемпературен бойлер и камина на пелети :wink: .Нещата се разделят най малко на 2 температурни кръга -този за подовото снабден със смесителен вентил и помпа , и втори кръг с отделна помпа за бойлера :wink: .Температура на водата към подовото от 30 до 45 градуса, за бойлера равно или над 55 градуса.Температурата с която ще се загрява бойлера е пряко свързана с температурата с която камината ще работи :wink: или над 55 гр .Ако в управлението на камината има логистика да управлява 1 или повече отоплителни кръга добре , ако няма -ще се направи допълнително.
syncho - майстор
alex_sas по-добре мини на по-малък диаметър тръба - 16 или 17. 20мм се ползва за по-големи обекти - халета и складове, където и замазката е по-дебела, а и там се поставя на по-голямо разстояние (стъпка).

filma не е необходимо да се управляват два кръга. Просто бойлера и радиаторите ще си работят на линията на печката, а подовото ще си понижава температурата със смесител в колекторната кутия. Температурата при която се включва помпата е 60С.
filmatoplo - майстор
:) Още по добре, че последно време с тази икономия на пелети -някой си карат уредите на 45 градуса :wink: .
syncho - майстор
Ние имахме един подобен случай, а после се чудиха, защо нямат топла вода за къпане... То как да имаш, като не я грееш :)
alex_sas - помощник
LazarGanev написа:
Печката може да отоплява двойно повече от това, което си писал
Как така двойно, по спецификация печката им мощност на водната риза 10.8kw?! :shock:
Ако е така, то направо да мисля за отопляване на 2то ниво(мезонет) с радиатори към същата камина. Там имам три стаи по 11кв.м.
filmatoplo написа:
Ако в управлението на камината има логистика да управлява 1 или повече отоплителни кръга добре , ако няма -ще се направи допълнително.
Не видях в описанието да има подобно нещо, предполагам, че ще го правя допълнително. Иначе и аз мисля, че най-удачен вариант ще е с 2 температурни кръга, подовото ще изключва при 45 и повече градуси. Така ми се струва, че печката ще работи най-икономично и ефективно.
syncho написа:
alex_sas по-добре мини на по-малък диаметър тръба - 16 или 17. 20мм се ползва за по-големи обекти - халета и складове, където и замазката е по-дебела, а и там се поставя на по-голямо разстояние (стъпка)
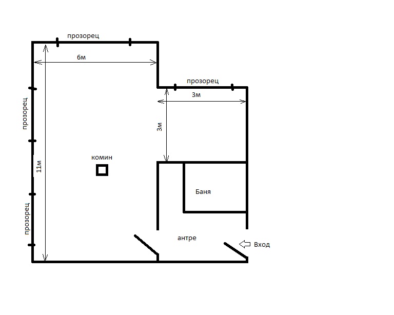
Не знам дали ще е достатъчно ф16, все пак помещението си е голямо. Мисля да залепя фибран 2см на плочата, върху него армираща мрежа и тръбите. Над тях ще има замазка с фибри 3-4см и отгоре гранитогрес. Общо ще повдигна сегашното ниво на пода с около 7см. Дал съм и схема на жилището, но все си мисля, че ще е добре да пусна тръби за радиатори под прозорците, не съм решил още на 100%.
Иначе имам още 3 стаи на второто ниво и ако Лазар Ганев е прав, то мога да отоплявам и тях. Досега не ги включвах в сметката, защото си мислех, че камината няма да има достатъчно мощност.
Как ви се струва ТОЗИ КОТЕЛ, заслужава ли си?

Прикачен файл

1vo_nivo.jpg
1vo_nivo.jpg (32.69 KиБ) Видяна 14830 пъти
Последна промяна от alex_sas на пон фев 25, 2013 1:16 pm, променено общо 1 път.

Тема "Водно подово с камина за пелети" | Включи се в дискусията:


Сподели форума:

Бъди информиран. Следвай "Направи сам" във Facebook:

Намери изпълнител и вдъхновения за дома. Следвай MaistorPlus във Facebook: