Здравейте, тъй като тук има много хора които се занимават с локално парно имам няколко въпроса.
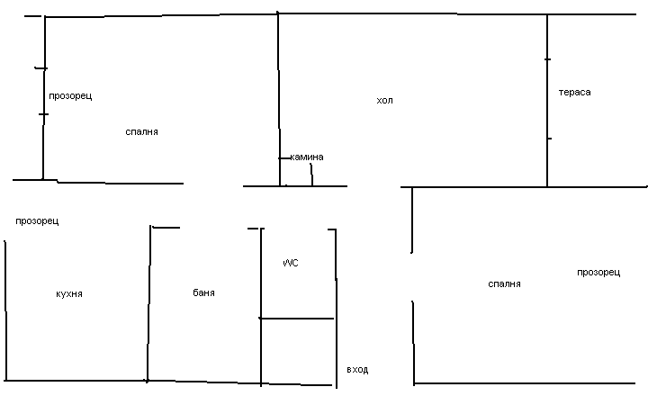
Това е набързо направената схема на апартамента.

apartament.GIF (4.55 KиБ) Видяна 2002 пъти
Та чудих се от къде да започна ремонта и реших от смяната на тръбите за ВиК и прокарването на тръби за парно.
Първия ми въпрос е може ли първоначално да се прекарат само тръбите, защото искам да са вкопани в стените и пода и след време като изцикля паркета в спалните и хола, наредя плочки в банята и кухнята, шпакловам и боядисам стените тогава да се монтират камината и радиаторите(защото си мисля че ако ги монтирам в началото само ще пречат без да вършат никаква работа, а със парите за тях бих могъл да си задвижа другите неща а и ще се работи по-лесно без тях).
Колко би излезнало като пари горе долу работа+материали за тръбите. Радиатори ще има в спалните, кухнята, коридора и може би банята, няма да слагам бойлер със серпентина а хола мисля да се грее само от камината. Мисля с медни тръби. А колко би било с ппр. с вложка?
И ако не може да се прекарат само тръбите първо кога във времето би било най-удачно да се прокара парното така че да не пречи за другите ремонти - Цикленето, шпакловането, плочките, и т.н.
Благодаря предварително на всички които дадат съвет!
Това е набързо направената схема на апартамента.
Прикачен файл:
apartament.GIF (4.55 KиБ) Видяна 2002 пъти
Първия ми въпрос е може ли първоначално да се прекарат само тръбите, защото искам да са вкопани в стените и пода и след време като изцикля паркета в спалните и хола, наредя плочки в банята и кухнята, шпакловам и боядисам стените тогава да се монтират камината и радиаторите(защото си мисля че ако ги монтирам в началото само ще пречат без да вършат никаква работа, а със парите за тях бих могъл да си задвижа другите неща а и ще се работи по-лесно без тях).
Колко би излезнало като пари горе долу работа+материали за тръбите. Радиатори ще има в спалните, кухнята, коридора и може би банята, няма да слагам бойлер със серпентина а хола мисля да се грее само от камината. Мисля с медни тръби. А колко би било с ппр. с вложка?
И ако не може да се прекарат само тръбите първо кога във времето би било най-удачно да се прокара парното така че да не пречи за другите ремонти - Цикленето, шпакловането, плочките, и т.н.
Благодаря предварително на всички които дадат съвет!