Здравейте колеги,
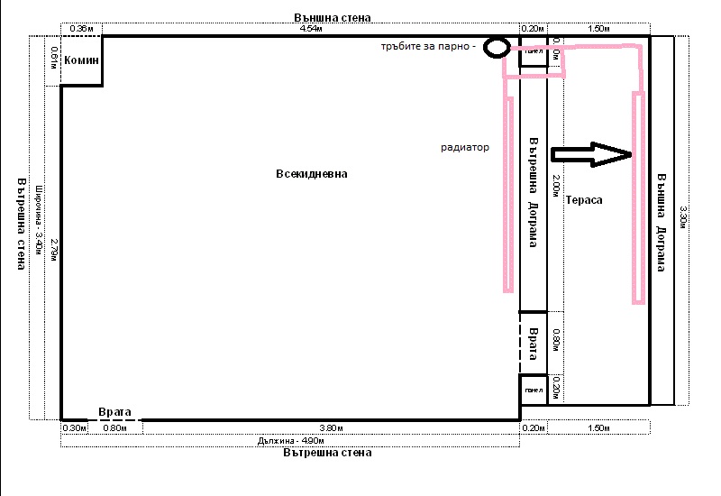
смятам да изместя радиатора от хола на терасата и да избия дограмата и стената помежду им.
Съседите под мен са мислили същото преди години, но са се отказали защото специалист по парното ги посъветвал да не го правят защото радиатора нямало да смогва да отоплява по големият обем помещение.
Приложено показвам скица на помещението с конкретни размери и параметри. Имам 2 външни стени.
Как мислите? Има ли такъв риск? Ако е така, какво е необходимо допълнително да направя? Допълнителна изолация на външните стени? По-голям радиатор? Подово отопление? Въобще какво решение да взема?
Живея в панелка. Радиатора е чугунен.
Благодаря предварително
смятам да изместя радиатора от хола на терасата и да избия дограмата и стената помежду им.
Съседите под мен са мислили същото преди години, но са се отказали защото специалист по парното ги посъветвал да не го правят защото радиатора нямало да смогва да отоплява по големият обем помещение.
Приложено показвам скица на помещението с конкретни размери и параметри. Имам 2 външни стени.
Как мислите? Има ли такъв риск? Ако е така, какво е необходимо допълнително да направя? Допълнителна изолация на външните стени? По-голям радиатор? Подово отопление? Въобще какво решение да взема?
Живея в панелка. Радиатора е чугунен.
Благодаря предварително
Прикачен файл
Skica_hol_toplo.jpg (73.23 KиБ) Видяна 4651 пъти

