Имам къща строена през средата на миналия век и сега правя
основни ремонти и съм на тема парно като първо от комина.
Изчетох всичко което намерих във форума ,честно казано
вече се обърках.Трябва ми ниско-бюджетно решение без особен
компромис в качеството или материалите.
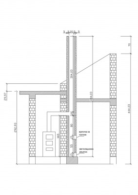
Става въпрос за проекто котел 17-20кв като ще ползвам за начало 13.5кв
руски,някъде към 1,8м ще е над керемиден покрив и ще преминава
през същесвуваща плоча имам близко канал за конденза и си мислех за
бетонни тела 30/40см габарит с фундамент, комина само външно шпакловани изолиран с 5см
вата от всички страни и облицован до покрива с огнеупорен гипс картон
,но как да хидроизолирам ватата над покрива и има ли проблем тази височина над покрива
с ветровете,от какво да направя вана за конденза да го отведа.
За парното ще питам по късно
основни ремонти и съм на тема парно като първо от комина.
Изчетох всичко което намерих във форума ,честно казано
вече се обърках.Трябва ми ниско-бюджетно решение без особен
компромис в качеството или материалите.
Става въпрос за проекто котел 17-20кв като ще ползвам за начало 13.5кв
руски,някъде към 1,8м ще е над керемиден покрив и ще преминава
през същесвуваща плоча имам близко канал за конденза и си мислех за
бетонни тела 30/40см габарит с фундамент, комина само външно шпакловани изолиран с 5см
вата от всички страни и облицован до покрива с огнеупорен гипс картон
,но как да хидроизолирам ватата над покрива и има ли проблем тази височина над покрива
с ветровете,от какво да направя вана за конденза да го отведа.
За парното ще питам по късно
Прикачен файл
shema komin.jpg (60.83 KиБ) Видяна 5833 пъти

