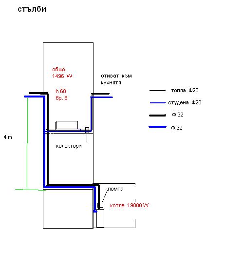
Така правилно ли е да се направи инсталатцията
ако нещо не е така кажете даго поправя
ако нещо не е така кажете даго поправя
Прикачен файл
untitled 2.JPG (33.13 KиБ) Видяна 6104 пъти
Прикачен файл
untitled.JPG (17.05 KиБ) Видяна 6104 пъти
