• 1
  • 5
  • 6
  • 7
  • 8
  • 9
Най - вълнуващия въпрос зимно време.
BARD - специалист
vessselinov написа:
Леле какви спорове и какви киловати се обсъждат. Говорим за обикновена камина на ПРИТИ с водна риза 8-10kW. Не разбирам и не съм учил като вас но имам проблем с загряването на водата в ризата не с преминаването на водата през изводите (3/4). Като сложа екобрикет или нацепя на ситно сухи дърва всичко си идва на мястото. Помпата работи на минимална мощност.
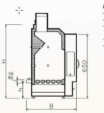
А и въпроса беше може ли и как да увелича обема на водната риза в горния край. Като се разгори здраво камината горния край на печката много здраво се напича - дои се е издул покривът малко, а и пламъка облива една ламарина и влиза в комина. На предната страница направих едни схеми за уголемяване на обема на ризата никой не ги обсъди. Гледах и малко по мощните камини от същата серия имат подобни заводски подобрения.

Изображение

Нека да почне да ми прегрява водата и да насмогва на радиаторите тогава да го мисля.


Ето това е ефективна водна риза.

Прикачен файл

2.jpg
2.jpg (11.6 KиБ) Видяна 4719 пъти

Прикачен файл

1.jpg
1.jpg (9.79 KиБ) Видяна 4719 пъти
grants - специалист
Приятелю,ако си добър със заварките смело и вдигай киловатите.Няма да имаш дерт,ако можеш да направиш и водна риза на мястото на решетката,където ще е и жарта, ефекта ще бъде много добър.Колкото за пушенето-миналата година пушеше ли ти? Ако не -почисти си комина ,ако да-пресен въздух.Успех
lux_e_on - специалист
grants написа:
Приятелю,ако си добър със заварките смело и вдигай киловатите.Няма да имаш дерт,ако можеш да направиш и водна риза на мястото на решетката,където ще е и жарта, ефекта ще бъде много добър
Ако имаше голям ефект от риза на мястото на решетката в горивната камера-ПОД ГОРИВНИЯ ПРОЦЕС-така щяха да ги правят заводски,но понеже топлото отивало нагоре-изкривил е плочата човека-обикновено ги слагат над пламъка и по пътя на димохода.С две думи ако увеличаваш ризата за да стане наистина 10kW,добавяй тръба в горната част и гледай да е дебелостенна да не прегори.
BARD - специалист
lux_e_on написа:
grants написа:
Приятелю,ако си добър със заварките смело и вдигай киловатите.Няма да имаш дерт,ако можеш да направиш и водна риза на мястото на решетката,където ще е и жарта, ефекта ще бъде много добър
Ако имаше голям ефект от риза на мястото на решетката в горивната камера-ПОД ГОРИВНИЯ ПРОЦЕС-така щяха да ги правят заводски,но понеже топлото отивало нагоре-изкривил е плочата човека-обикновено ги слагат над пламъка и по пътя на димохода.С две думи ако увеличаваш ризата за да стане наистина 10kW,добавяй тръба в горната част и гледай да е дебелостенна да не прегори.
Тука може да се поспори но не ми се занимава .По пътя на здравият разум колкото по голяма част от корпуса на горивната камера обхваща водната риза толкова е по ефективна.
LazarGanev - "Велик майстор"
BARD написа:
Тука може да се поспори но не ми се занимава .По пътя на здравият разум колкото по голяма част от корпуса на горивната камера обхваща водната риза толкова е по ефективна.
Съгласен съм. Но все пак ако отвсякъде горивната камера се заобиколи с водна риза няма да може да развива достаъчна температура и няма да има мощност. Всичко е въпрос на проектантско виждане и изчисления и в повечето случаи едни допълнителни вмешателства могат да влошат положението.
vessselinov - специалист
lux_e_on написа:

.... изкривил е плочата човека-обикновено ги слагат над пламъка и по пътя на димохода.С две думи ако увеличаваш ризата за да стане наистина 10kW,добавяй тръба в горната част и гледай да е дебелостенна да не прегори.
Аз мога 2 максимум 3 тръби да сложа - две по-напред където пламъка напича плочата, и една до комина. Така или иначе трябва да направя нещо ако не стане ще иде за вторичи и ще търся по-мощна. Ако реша да сложа дебелостенни тръби какъв цолаж да са и в най-горната част ли да са разположени или малко по надолу, наклон нужен ли е нещо по-специфично??? Някой правил ли е тази процедура да сподели как най-лесно става. Да се разпробият дупки, тръбите и заваряване??
BARD - специалист
LazarGanev написа:
BARD написа:
Тука може да се поспори но не ми се занимава .По пътя на здравият разум колкото по голяма част от корпуса на горивната камера обхваща водната риза толкова е по ефективна.
Съгласен съм. Но все пак ако отвсякъде горивната камера се заобиколи с водна риза няма да може да развива достаъчна температура и няма да има мощност. Всичко е въпрос на проектантско виждане и изчисления и в повечето случаи едни допълнителни вмешателства могат да влошат положението.
Лазаре от какво според теб зависи горенето със висока температура във котлите и горивните камери за вграждане в камини? Дали е от това колко голяма по площ е водната риза.
lux_e_on - специалист
BARD написа:
Лазаре от какво според теб зависи горенето със висока температура във котлите и горивните камери за вграждане в камини? Дали е от това колко голяма по площ е водната риза.
Предполага се че читавите и от двата вида са чугунени,нали?В тоя ред на мисли ако можеш да ми покажеш чугунен котел или камера на които водната риза да е и в решетката и краката(при котела),ще съм ти длъжен поне бира.
grants - специалист
Навремето на една самоделка-печка с водна риза така и вдигахме киловатите с 3 тръбички,където бие пламъка.Ефекта беше доста добър.Направи ги поне 1 цол дебелостенна тръба с лек наклон 1-2 градуса.Водна риза направихме на следващата година и на мястото на скарата.Ефекта беше също много добър,но тъй като я карахме с въглища за един сезон се спука скарата,после пак заварки......гимнастики..........и докато си взехме заводска камина.
lux_e_on - специалист
Какъв е извода?Без риза-скара ?
  • 1
  • 5
  • 6
  • 7
  • 8
  • 9

Тема "СХЕМА ЛОКАЛНО ПАРНО АПАРТАМЕНТ" | Включи се в дискусията:


Сподели форума:

Бъди информиран. Следвай "Направи сам" във Facebook:

Намери изпълнител и вдъхновения за дома. Следвай MaistorPlus във Facebook: