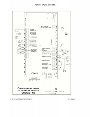
Моля ви дайте разяснение кой датчик къде да включа по клемореда/ако може със снимка/. Сигурно го има в темата, но нямам време да изчета над 250 страници.
Най - вълнуващия въпрос зимно време.
VLADO66
- майстор
15814 мнения в "Пелетни горелки GREYKO BMG и RB"
Kondor1
- специалист
- Мнения: 620
Miro4774 написа:Според мен трябваше да направят горелката да може да следи стайният и да си намалява мощността след като са сложили опция стаен термостат. И още една опция защо е ограничена до 80 градуса? Иначе аз съм от 3 години и нямам проблем.Имаш предвид да следи градусите като стойност? Стандартните стайни термостати изпращат сигнал включи/изключи. Конкретната температура няма значение.
filmatoplo
- майстор
- Мнения: 17842
Не съм сигурен дали на тази платка може да се направи такава функция ,няма такова место да се свърже датчик за стайна температура и електрониката да върши - намаляне на мощността .Направено е по друг начин ,да си купиш стаен термостат и да прекъсваш контакт на клемата RT. Има логика да има датчик за стайна температура също като за Бгв , на дисплея да се наглася стайна температура и хистерзис ,след това функцията да бъде същата с едно изключение - да може да се задава дневна с няколко часови зони и нощна температура.. Фантазиите да продължат-Сега...
Трифон П.Трифонов
- майстор
- Мнения: 22967
Иска да каже, горелката да модулира по стайна температура, а аз искам и възможност за еквитермична регулация.
Това, обаче, няма да се случи-ще модулира в много тесен диапазон, което е безсмислено.Почти, и не съвсем, включено-изключено.
Горните изисквания съм си ги осигурил с допълнителни джаджи.
Това, обаче, няма да се случи-ще модулира в много тесен диапазон, което е безсмислено.Почти, и не съвсем, включено-изключено.
Горните изисквания съм си ги осигурил с допълнителни джаджи.
LazarGanev
- "Велик майстор"
- Мнения: 15045
Новият контролер ще има тази функция, за която се боря отначало - модулиращ стаен термостат. Само тези със старите версии да не се сърдят 
gnt69
- майстор
- Мнения: 3784
LazarGanev написа:Новият контролер ще има тази функция, за която се боря отначало - модулиращ стаен термостат. Само тези със старите версии да не се сърдятБи ли споделил история на обновяванията, какво е променено в последните версии.
А за стайния термостат аз няма да се сърдя защото топля през буфер и прост ме устройва.
Kondor1
- специалист
- Мнения: 620
LazarGanev написа:Новият контролер ще има тази функция, за която се боря отначало - модулиращ стаен термостат. Само тези със старите версии да не се сърдятКолко струва една управляваща платка? За мен по-ценна е функцията за следене на вентилатора. За темостата - не знам продават ли такива, които да предават температурата вместо ON/OFF.
Тема "Пелетни горелки GREYKO BMG и RB" | Включи се в дискусията:
Сподели форума:
Бъди информиран. Следвай "Направи сам" във Facebook:
Намери изпълнител и вдъхновения за дома. Следвай MaistorPlus във Facebook:
Имаш нужда от подходящ професионалист за дома?
- Преустройство, ремонт и реновиране
- ↳ Вашите ремонти
- ↳ Кухня
- ↳ Баня
- ↳ Дневна
- ↳ Спалня
- ↳ Детска
- ↳ Градина
- ↳ Коридор
- ↳ Тераса и балкон
- Направи сам
- ↳ Направи сам
- ↳ Ремонтирай сам
- ↳ Къде е по-евтино?
- ↳ Дърводелство
- ↳ Ел. инструменти
- ↳ Металообработване
- ↳ Конкурс "Направи сам 2012"
- Строителство
- ↳ Всичко за вилата
- ↳ Къщи
- ↳ Саниране
- ↳ Хидроизолация
- ↳ Пасивни и нискоенергийни сгради
- Сухо строителство
- ↳ Окачени тавани
- ↳ Преградни стени и предстенни обшивки
- ↳ Сухи и повдигнати подове
- ↳ Декоративни елементи - колони, трегери, сводове и др.
- ↳ Всичко за гипскартона и гипсфазера
- Въпроси и Отговори
- ↳ Полезни съвети
- ↳ Автомобили
- ↳ Партньори
- ↳ Боядисване и Декориране
- ↳ Вентилация, климатици и термопомпи
- ↳ Водоснабдяване и канализация.
- ↳ Всичко за ремонта
- ↳ Електротехника
- ↳ Отопление
- ↳ Газификация
- ↳ Електроника и Схеми
- ↳ Газобетон
- ↳ От всичко по малко
- ↳ Компютри и периферия
- ↳ Уеб дизайн, PHP, MySQL, JavaScript, HTML..
- ↳ Мобилни устройства, GSM-и
- ↳ Нека се запознаем
- ↳ Recycle Bin
- Статии
- ↳ Практични решения
- ↳ Качване на снимки
- ↳ Какви статии искате?
- ↳ Готварство, туршии и зимнина
- ↳ Отмора и шеги
- ↳ От нищо нещо
- ↳ Не е за вярване
- ↳ Литература
- ↳ Връзки към Интересни сайтове
- Магазин
- ↳ Препоръки и Мнения за он-лайн магазина
- ↳ Крадeни инструменти !!!
