• 1
  • 11
  • 12
  • 13
  • 14
  • 15
  • 51
Най - вълнуващия въпрос зимно време.
phantom_ - специалист
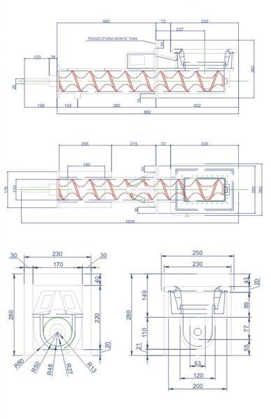
Много як изглежда редуктора,въглищата с какъв най голям диаметър минават през нея..А пробвал ли си я с слънчогледови пелети?Аз мисля да направя една с глава като на грейко,но както е при теб за да може да гори въглища :?
ktch_1964 - специалист
Просто такъв редуктор имах не съм го търсил специално, малко е голям , но на харизан кон зъбите не се гледат .
Изработката на желязото не е нищо сложно всеки с умения да заварява и реже с ъглошлайф ще се справи.
Горелката има само един стругован елемент, това е черупката на лагера.
phantom_ - специалист
А на оригиналът Екоенергия колко Фи му е шнека спиралата вътрешно?
шоп - майстор
phantom_ написа:
А на оригиналът Екоенергия колко Фи му е шнека спиралата вътрешно?

Прикачен файл

111111111111.JPG
111111111111.JPG (30.5 KиБ) Видяна 2945 пъти
phantom_ - специалист
Благодаря колега златен си :prayer: Трябва да започна да събирам частите,и да видя наличните с който разполагам.Благодаря още веднъж.

Пп. Намерих ма 25 киловатовата и май има разлика с тази.Само за шнека няма размер. :cry:
Прикачен файл:
3770401_72005646_big.jpg
3770401_72005646_big.jpg (70.32 KиБ) Видяна 2911 пъти
boyanak - напреднал
6osi6 написа:
Шнекът може да е чугунен, когато горенето е над него. Горелките с чугунено коляно са със стоманени шнекове. При тях няма нужда от чугунен.
boyanak написа:
На мен Екоенергия ми иска 1000лв в повече за комплекта с моята мощност или 3100лв,а аз го взех за 2100лв!
Какви са мощността и горелката?
53кВ е Виадруса,а горелката-60кВ!
6osi6 - майстор
boyanak написа:
53кВ е Виадруса,а горелката-60кВ!
Не е ли много 60kW?
Според разхода от 5.т горелката работи на 20 kW.
шоп - майстор
phantom_ написа:
Мене ме сърбят ръцете :roll: . Според теб (вас)правен стоманен шнек няма ли да издържи на такава горелка?Или може ли да се поръча само той и управлението примерно?Шнека отзад към бункера е на лагери а отпред как е изпълнено,на втулка ли?
Някаде имах цяла галерия от снимки на счупени стоманени шнекове от самоделни и фабрични руски горелки. 99% счупването става в предната част на шнека където вала лагерува в главата. Там освен голями механични натоварваня имаме и термични такива. Ако се направи от подходяща стомана шнека ще издържи, но според мен ако се купи тази стомана + последващата стругарска и заваръчна работа, то дали не е по-удачно да се закупи чугунен шнек.



Лагеруването в предната част е метал в метал. Чугуна е мек и "мазен" метал и дори в миналото за бавнооборотни търкалящи се лагери се е използвал чугун. При стоманата не е така. Нямам представа дали бабит, бронз или месингови втулки ще издържат.

Лагеруването от страната на бункера е с лагери съчетани с редуктора. При самоделна направа трябва да се вземе впредвид и аксиалното натоварване и да се подберът подходящи за целта лагери ( аксиални или конусни)
ktch_1964 - специалист
Шопе, за аксиалното натоварване си абсолютно прав , според мен никак не е малко. Моят лагер е от предна главина на някакъв
бус, просто търсех лагер да е с 22мм. вътрешен диаметър и да е аксиално-радиален. На оста на шнека до където трябва да
влезе в лагера заварих втулка която опира челно във вътрешната черупка и предава аксиалното натоварване на лагера.
Лагера е демонтиран защото е виел , но за горелка е добре тъй като там няма високи обороти.
filmatoplo - майстор
Без да съм видял шнека си мислих до къде стига навивката на шнека да не натъпче горивото до края и да се мъчи ,сега гледам че последната масивна е в обратна посока ,тоест малко преди края и така горивото ще започне да се издига на горе - така ли е наистина .
  • 1
  • 11
  • 12
  • 13
  • 14
  • 15
  • 51

Тема "Ретортна горелка vs специализирана горелка" | Включи се в дискусията:


Сподели форума:

Бъди информиран. Следвай "Направи сам" във Facebook:

Намери изпълнител и вдъхновения за дома. Следвай MaistorPlus във Facebook: