ето и схемата с поправките
ако има друго за дооправяне казваите
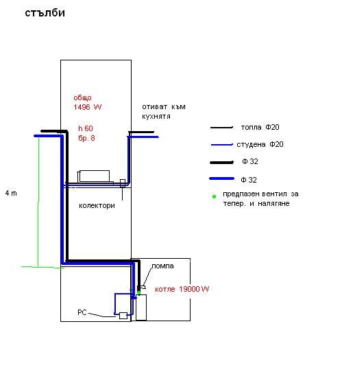
котлето мисля да е Viadrus U22 на тв. гориво /4 секции 23,3 kW/
при 80% ефективност се получава 18,8 kW
почти толкова колкото е на схемата /там е дадено с 30% резерв/
ако има друго за дооправяне казваите
котлето мисля да е Viadrus U22 на тв. гориво /4 секции 23,3 kW/
при 80% ефективност се получава 18,8 kW
почти толкова колкото е на схемата /там е дадено с 30% резерв/
Прикачен файл
untitled 4 zatvorena dorabotka.JPG (19.34 KиБ) Видяна 5427 пъти

