• 1
  • 3
  • 4
  • 5
  • 6
  • 7
  • 10
Най - вълнуващия въпрос зимно време.
filmatoplo - майстор
Такива хубави котлета имате пък не им се сещате ,тук номера е че горивната камера трябва да е с Подналягане тоест вентилатора засмуква газовете и те трябва да дойдат само през кошничката ,и затова всичко е затворено с тази ламарина ,а не е отворено към пепелника .При другите не е така - около кошницата всичко е плътно да не пречи за въздуха ,но отстрани е свободно и пепелта си пада отстрани в пепелник .Искали са да направят подвижно дъно уж за хубаво ,но си остава неудобството пепелта да се събира горе .Моята камина е точно така ,не ми пречи въобще ,натрупаната пепел чистя веднъж на 1-2 месеца ,само всеки ден стържа стените на ризата и чистя кошничката .
Gost82 - напреднал
Да се включа и аз след последните студени дни. При външна температура от -3/+2 гр. разходът ми е максимум 1,5- 2 чувала за 24 часа. Котелът е на 70 гр. на водата и на степен 3. Гася го веднъж седмично за по 2 часа, за да го почистя. Усеща се голяма разлика с 22-ката. Не гасне постоянно и държи дълго време модулация. А когато изгасне след достигане на температурата, пали по-бързо и помещенията ми не изстиват, както ставаше с 22-ката.
joroY това с пепелта и при мен е същата работа. Взех една прахосмукачка за пепел от Лидл и съм супер доволен :-D.
andy_forresite - майстор
Филматори, забеляза ли че този пепелник е по-голям от този в експерт 20?
Питам се защо е този амбар за пепел, след като в него попада само някоя заблудила се прашинка. Вие можете да си мятате пепелниците след Великден. Даже като гледам как върви и тогава няма да се е напълнил. Бе добре е.
joroY - напреднал
filmatoplo Това че работи с под налягане ми е ясно и за това съм посочил и delta-p

Gost82 Аз даже съм го направил на 75 градуса .... по принцип си работи на 60 градуса през повечето време защото е само на 1 степен , но когато термо главите затворят няколко радиатора температурата бавно почва да расте и докато стигне 75 все някоя глава отваря и пада на 60 - 65 градуса .... така съм избегнал гасенето
А щом и при теб е така пепелта да не се притеснявам :-D и аз си взех прахосмукачка от Лидл
Здравейте,
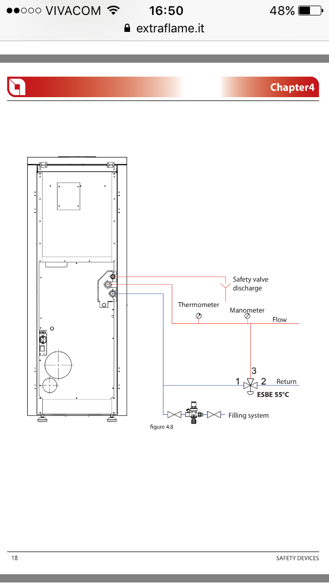
Честито Рождество! Желая здраве и благоденствие на всички! Бих искал да отправя питане към ползвателите на споменатите в темата котли и към колегите с опит. На мен ми предстои инсталирането на подобен котел, затова се интересувам от поведението на котела при наличието на трипътен антикондензен вентил (на 55 градуса), препоръчан от производителя. Имат ли вашите инсталации такъв клапан? Прави впечатление,че в различните издания на инструкциите за експлоатация на един и същи котел се посочват 2 различни схеми на инсталация на антикондензния клапан (пример Esbe VTC 510) - в едната схема с Баланс вентил, в другата без. Прикачам снимки с двете схеми.
Прикачен файл:
IMG_6041.PNG
IMG_6041.PNG (80.14 KиБ) Видяна 2391 пъти
Прикачен файл:
IMG_6040.PNG
joroY - напреднал
Здравей,
Честито Рождество!
Аз ще кажа моите наблюдение а кое е правилно ще кажат специалистите :-D трипътния антикондензен вентил е хубаво нещо и то най вече за котела ,въпреки че помпата тръгва на 60 градуса и спира на 56 , той осигурява по топла постъпваща вода в котела .
При нищожния разход на пелети за моето жилище аз направих и един друг експеримент ... вдигнах температурата на вкл. на помпата от 60 на 62 градуса .... повишен разход на пелети не забелязвам но пък цвета на горивната камера се промени и стана по светъл
Баланс вентил немам :-D па и изобщо не го знам какво е това животно :?
И един чисто сърдечен съвет към теб .... не се презапасявай с ненужна мощност , аз все още го карам само на 1-ва степен за почети 100 квадрата апартамент
Успех с начинанието ... ако решиш може да ни запознаеш по подробно с плановете си за отопление и на особенностите на жилището
Здравей,

Относно действието на антикондензния вентил, наясно съм с целта на неговото присъствие в системата и по-скоро се интересувам от реален опит с него, особено при гореспоменатите котли или аналогични пелетни съоражения. Относно моята конфигурация:
Къща с РЗП -250 м2 (190м2 отопляема площ) 2 етажа, Зидария Porotherm, 12 см изолация и PVC дограма с троен стъклопакет
Ниско и восокотемпературни кръгове както следва:
Нискотемпературен - подово за целия 1 етаж с отделна помпена група и термостатен смесител
Високотемпературен - радиатори за 2 етаж и БГВ - 150л
Котел: Extraflame LP 20 (3.9 - 20.7KW)-наличен, предстои да бъде инсталиран към системата. Антикондензният вентил - наличен и тъй като се натъквам на вариант за инсталиране с и без Баланс вентил (Хидроконтрол) исках да събера мнения и реален опит. В инсталационните инструкции към Антикондензния вентил ( в моя случай Херц) производителят не задължава наличието на Баланс вентил, поради пълното затваряне на малкия кръг след достигане на 61 градуса.
syncho - майстор
Разликата м/у котел с трипътен вентил и същия котел без трипътен вентил се вижда съвсем ясно, когато се прави профилактика. Понеже не веднъж съм бил свидетел на такава ситуация както при котли, така и при камини ще ви кажа следното: при уред с трипътен вентил пепелта, която е полепнала по стените само с докосване се свлича и почиства, а при уред без трипътен вентил се наблюдават черни катранени наслоявания, които дори и със шпатула трудно се изстъргват. Вие си правете сами за себе си изводите. Да, не е задължително, но аз лично препоръчвам с две ръце ползването на трипътен вентил и дори според мен би трябвало да е задължителен.
joroY - напреднал
Ето който е видял и двете ситуации може да каже най добре ..... точно щях да споменавам че "syncho" най добре може да знае
Но ми се струва че неговото питане е насочено най вече към Баланс вентила .... а аз не знам дори и какво е това :?

Както и да е ...naskothegreat , добре изолирана къща , предпоставките за уютна и топла обстановка са налице . Желая ти успех
Благодаря Syncho,
Дали имаш някаква позиция по исталирането му с и без Баланс вентил?
  • 1
  • 3
  • 4
  • 5
  • 6
  • 7
  • 10

Тема "Котел на пелети La Nordica Extraflame – настройки, проблеми, мнения и др." | Включи се в дискусията:


Сподели форума:

Бъди информиран. Следвай "Направи сам" във Facebook:

Намери изпълнител и вдъхновения за дома. Следвай MaistorPlus във Facebook: