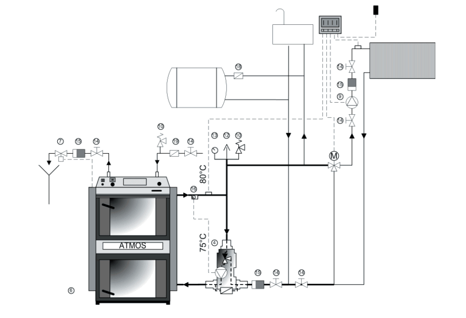
(ако няма да правиш класическото свързване с ладомат и буфер) Това е схемата с 4пътен вентил - разширителния отворен съд се свързва на изхода на котела , като между котела и съда няма никакви кранове .Забележи че се монтират 2 помпи , една на котелния кръг и втора на радиаторния кръг .
Най - вълнуващия въпрос зимно време.
filmatoplo
- майстор
44 мнения в "Питане за Atmos Kombi C40 S"
Christo
- майстор
- Мнения: 1104
На схемата, която си дал, съвсем в началото от Ерато виж как са свързани левите и десните радиатори. Тях коментирах, а не твоите схеми. В края на краищата, парите са си твои и ще си ги похарчиш, както ти решиш. Атмос са реномирана и стара фирма. Правили са още в началото на миналия век двигатели за автомобили с газ генератори. Просто после са почнали да правят котли на същия принцип. Едни от малкото са, които са допуснати от BAFA да продават котли в Германия. Ако нямаш вече четирипътен вентил, бих ти препоръчал да изпълниш с два трипътни вентила една от схемите от техния сайт и да нямаш грижи. Едният трипътен вентил си го има заедно с помпата на Ладдомата. Що да измисляме "топлата вода". Поздрави и успех!
Прикачен файл
06.gif (45.47 KиБ) Видяна 1217 пъти
Последна промяна от Christo на пон яну 20, 2014 7:10 pm, променено общо 1 път.
filmatoplo
- майстор
- Мнения: 17842
Всякак става , аз правя това -като на колегата -показвам снимките му , че нямам сега мои .Атмос с 4пътен вентил .viewtopic.php?f=10&t=22445&start=60 , viewtopic.php?f=10&t=22445&start=40
vrangelov
- специалист
- Мнения: 853
Сигурно вече ставам нахален, но пак да попитам, колега gonev. Пробва ли с екобрикети или сухи дърва?
Не е лошо, че гледаш варианта без буфер, но както Christo вече ти каза, няма смисъл да нямаш буфер. Без буфер котелът няма да гори в оптимален режим и ще имаш преразход. Като го направиш да гори както трябва ще имаш излишък на енергия. Имаш два варианта, да я съхраниш в буфера или да "задушиш" (както му казват тук във форума) котела. При задушаване котела не е ефективен. Твоята къща е голяма и котелът ще може да работи на min., но в по-топло време, когато минималната мощност е повече от потреблението на къщата ще ти завира котела. Имаш ли данни колко би трябвало да са максималните топлозагуби на твоята(на дядото) къща. Ако не се лъжа, много грубо ги смятат на къща без изолация около 60W на квадратен метър. Нека ако греша някой ме поправи. 3х120x60=21,6 kW и това при студено време. Т.е. всичко над тази мощност ще (трябва да)може да ходи някъде - в буфера.
Иначе BAFA не определя кой ще продава котли в Германия, а дава пари на тези, които са готови да си закупят ефективен котел на биомаса. Под ефективен се разбира такъв с КПД над 90%, а под биомаса се разбира дърва, пелети и дървен чипс. За чипс не зная как е, но за котел на дърва субсидията е 1400 евро, а за котел на пелети 2800. Има също и добавки за слънчеви колектори, но чак до толкова не съм запознат. Интересното е, че Атмос имат специална серия котли, които са създадени да покриват изискванията на BAFA. Тези котли не се продават в България. Ето го списъка на пиролизните и на пелетните котли.
В списъка с пиролизните котли се вижда и минималният обем на буфер, който трябва да бъде монтиран, за да се получат парите. Обемът на буфера е сметнат 55литра на kW мощност.
Изводите ги оставям на теб.
Поздрави
Не е лошо, че гледаш варианта без буфер, но както Christo вече ти каза, няма смисъл да нямаш буфер. Без буфер котелът няма да гори в оптимален режим и ще имаш преразход. Като го направиш да гори както трябва ще имаш излишък на енергия. Имаш два варианта, да я съхраниш в буфера или да "задушиш" (както му казват тук във форума) котела. При задушаване котела не е ефективен. Твоята къща е голяма и котелът ще може да работи на min., но в по-топло време, когато минималната мощност е повече от потреблението на къщата ще ти завира котела. Имаш ли данни колко би трябвало да са максималните топлозагуби на твоята(на дядото) къща. Ако не се лъжа, много грубо ги смятат на къща без изолация около 60W на квадратен метър. Нека ако греша някой ме поправи. 3х120x60=21,6 kW и това при студено време. Т.е. всичко над тази мощност ще (трябва да)може да ходи някъде - в буфера.
Иначе BAFA не определя кой ще продава котли в Германия, а дава пари на тези, които са готови да си закупят ефективен котел на биомаса. Под ефективен се разбира такъв с КПД над 90%, а под биомаса се разбира дърва, пелети и дървен чипс. За чипс не зная как е, но за котел на дърва субсидията е 1400 евро, а за котел на пелети 2800. Има също и добавки за слънчеви колектори, но чак до толкова не съм запознат. Интересното е, че Атмос имат специална серия котли, които са създадени да покриват изискванията на BAFA. Тези котли не се продават в България. Ето го списъка на пиролизните и на пелетните котли.
В списъка с пиролизните котли се вижда и минималният обем на буфер, който трябва да бъде монтиран, за да се получат парите. Обемът на буфера е сметнат 55литра на kW мощност.
Изводите ги оставям на теб.
Поздрави
Тема "Питане за Atmos Kombi C40 S" | Включи се в дискусията:
Сподели форума:
Бъди информиран. Следвай "Направи сам" във Facebook:
Намери изпълнител и вдъхновения за дома. Следвай MaistorPlus във Facebook:
Имаш нужда от подходящ професионалист за дома?
- Преустройство, ремонт и реновиране
- ↳ Вашите ремонти
- ↳ Кухня
- ↳ Баня
- ↳ Дневна
- ↳ Спалня
- ↳ Детска
- ↳ Градина
- ↳ Коридор
- ↳ Тераса и балкон
- Направи сам
- ↳ Направи сам
- ↳ Ремонтирай сам
- ↳ Къде е по-евтино?
- ↳ Дърводелство
- ↳ Ел. инструменти
- ↳ Металообработване
- ↳ Конкурс "Направи сам 2012"
- Строителство
- ↳ Всичко за вилата
- ↳ Къщи
- ↳ Саниране
- ↳ Хидроизолация
- ↳ Пасивни и нискоенергийни сгради
- Сухо строителство
- ↳ Окачени тавани
- ↳ Преградни стени и предстенни обшивки
- ↳ Сухи и повдигнати подове
- ↳ Декоративни елементи - колони, трегери, сводове и др.
- ↳ Всичко за гипскартона и гипсфазера
- Въпроси и Отговори
- ↳ Полезни съвети
- ↳ Автомобили
- ↳ Партньори
- ↳ Боядисване и Декориране
- ↳ Вентилация, климатици и термопомпи
- ↳ Водоснабдяване и канализация.
- ↳ Всичко за ремонта
- ↳ Електротехника
- ↳ Отопление
- ↳ Газификация
- ↳ Електроника и Схеми
- ↳ Газобетон
- ↳ От всичко по малко
- ↳ Компютри и периферия
- ↳ Уеб дизайн, PHP, MySQL, JavaScript, HTML..
- ↳ Мобилни устройства, GSM-и
- ↳ Нека се запознаем
- ↳ Recycle Bin
- Статии
- ↳ Практични решения
- ↳ Качване на снимки
- ↳ Какви статии искате?
- ↳ Готварство, туршии и зимнина
- ↳ Отмора и шеги
- ↳ От нищо нещо
- ↳ Не е за вярване
- ↳ Литература
- ↳ Връзки към Интересни сайтове
- Магазин
- ↳ Препоръки и Мнения за он-лайн магазина
- ↳ Крадeни инструменти !!!
