Айде да помогна с нещо. 
Прикачен файл
sihsmallzyz.jpg (65.24 KиБ) Видяна 2605 пъти
Прикачен файл
15.gif (36.64 KиБ) Видяна 2605 пъти
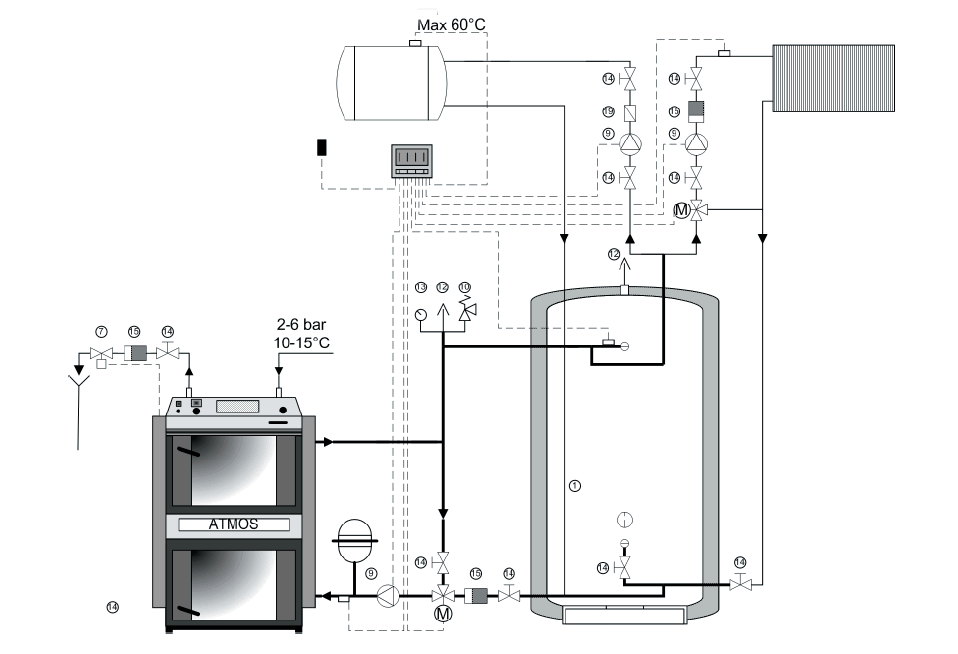
Прикачен файл
Прикачен файл
нед авг 23, 2020 11:53 amfilmatoplo написа: Имаш пари и си правиш експерименти ,кога ще се изплати инсталацията .И аз това и му намеквам на Трифонари ама той не вдява - гони Михаля по слънцето...няма невъзможни неща щом някой ги плаща ,ама дали е рентабилно.Сметни с колко финансово се качва , и колко години ще се изплаща -буфер и панели ,ако е 8-10 г -не ти трябва.
Да ти пести в най добрия случай 1 тон -380лв , значи 10 години.
Прикачен файл
нед авг 23, 2020 1:11 pmMonk_1983 написа: Основно ме интересува начина на свързване на буфераАз не бих дал 5/6 хиледарки че да гоня Михаля по слънцето...
Другото което казах е че ако няма буфер котела ще се пали често защото навсякъде ще е подово със управление на всяка стая температурата която ще подавам в подовото ще е 45-50градуса представяте ли си ако е дирекно от котела намаля тази температура колко често ще гаси и пали горелката
Другият + на бувера е че ще мога да кача 3,4панела колкото и да не е ще помага да не кажа че ще доста.
нед окт 18, 2020 9:01 pmТрифон П.Трифонов написа: Печка, за пореден път затвърждаваш не особено добро мнение, у мен, но уважавам изборът и разбиранията ти.Не е баш така аз ако не те уважавам няма да ти обръщам внимание у форума...
пон окт 19, 2020 8:37 amfilmatoplo написа:Бе и ти си достатъчно дърт, ма съжалявам, че не съм разбрал!Имаме Баща на форума ,нека другите да се праскат с титли-майстор ,калфа,чирак,велик
![]()
![]()
Сподели форума:
Бъди информиран. Следвай "Направи сам" във Facebook:
Намери изпълнител и вдъхновения за дома. Следвай MaistorPlus във Facebook: