• 1
  • 2
Вашето лично помещение
Здравейте бих искала да ви помля за помощ.
Решили сме да си направим сам самички гардероб В260 Д260 Ш 60. Гардероба ще бъде разделен на три сектора най-отгоре на всеки сектор ще има гардеробен лифт. Ще има три плъзгащи се врати една или две ми се иска да са огледални. Бихте ли могли да ми дадете идеи как точно да реализираме този проект , а също така и съвети кои материяли и елементи ще са подходящи Особено живо се интересувам от плъзгащият механизъм на вратите кой е най подходящият и качествен :?: Не ни е ясно дали ще трябва по сециялно укрепване на това гардеробче защото е доста големичко а ще се намира в стая която се обитава от малки деца.
rendo - специалист
Щом сте решили да го правите сами значи не сте се много опаричили - ама пък за сметка на това искате да хапнете голяма лъжица
Гардероба се прави така
Прави се рамка от страниците - отзад се опаянтва с Фазер
След което се монтират механичмите за вратите
Евтиния варянт е да се сложат огледата и на тях да се закачи механизма - това не е добър варянт
По скъпия е да се подплати стъклото или с пдч или с мдф но да има подплата .
Защото иначе ако е само на стъклото е опасно а като цяло щом е за деца аз не бих им сложил такъв гардероб- на един комшия децата се качваха върху гардероба и от гардероба скачаха на кревата и един ден гардероба се катурна напред и стана белята ако беше с огледала не ми се мисли :lol:

За тва по добре ако сте решили да е огледален - по добре си хванете някой да ви го направи аз лично не бих си го правил сам въпреки че не би ми било проблем :lol:
shadowman - майстор
Моето мнение е, че гардероб с плъзгащи врати е по-трудоизпълнимо от гардероб с врати за човек който не е правил нещо подобно. Също така мисля, че за този гардероб няма да ви вземат много пари, но вие си знаето. Трябва да започнете отнякъде, например от това дали вратите ги искате отвън гардероба или в него (моя в нас е с вътрешни врати, но ся по-често ги правя с външни), механизма който ползвам е немски (поне така пише на кутията и за вашия размер цената му е около 200 пари (с турски ще излезе малко по-евтино), кум него трябва да прибавите четири кант дръжки и две капачки ако ще е с три врати, или две кант дръжки с две капачки което, те са от алуний и според профила е и цената им. Трябва да си помислите и за размера, ако гардероба е с врати го правя 600мм, но плъзгащия го правя поне 650 щото вратите "ядат" празното пространсво. Трябва и а помислите за височината на гардероба щото вратите стават доста тежки (ако се правят от плътно ПДЧ) + стъкло, демек и механизма трябва да е здрав, тоест може да е по скъп от това което писах (говоря за нещо качествено)... и т.н... като се сетя колко неща има да се доизмислят ме боли глава...
Да кажа и още нещо, гардероб с плъзгащи врати излиза винаги по-скъпо от такъв с панти.
Даже съвсем формално мога да ти кажа за колко пари горе-долу може да се направи.
решили сме да е с плъзгащи се врати за да пестиме място. Иска ни се със сигурност ние да си направим гардеробната част а ако е твърде сложно вратите ще си ги поръчаме. :? . Интересува ме за какво трябва да внимаваме като зглобяваме гардероба за да не стане горепосоченият пример. Трябва ли да го закрепиме за стената или такава голяма конструкция би трябвало да е достатъчно стабилна
rendo - специалист
Добрееееееее - блаженни са вярващите
Отивате в практикер намирате пдч-тата които ви трябват
Отивате на кроилницата и ги давате да ви се разкроят . след което смятате лицето на гърбът и си поръчвате фазер да ви разкроят колкото е гърбът.
сглабяте страниците с винтове и ъгълчета едни към други слагате гърбът и поръчвате вратите - сметката ви излиза по скъпа - но ум царува ум робува ... след което слагате механизмите и окачате вратите
Дали да се хваща към стената зависи от това как сте си възпитали децата :lol:
Пак предлагам щом ще е за детска по добре пак с плъжгащи но обикновенни врати да няма огледало

това е .
naB4o - специалист
А защо да е в Практикер ?! Там е по-скъпо от др места във Варна например... А за плъзгащите врати няма да е толкова по-сложно според мен. По-сложното за мен лично е да се слагат ексцентрици и т.н. вместо да се бият направо видии и евровинтове
todor_tsanov - специалист
някои да знае каква е цената на гардеробите на salamore с лакобел http://www.selamore.com/index.php?id_ca ... id_ssub=66 и имали други фирми който да ги правят и какви са цените им
Bambookita - специалист
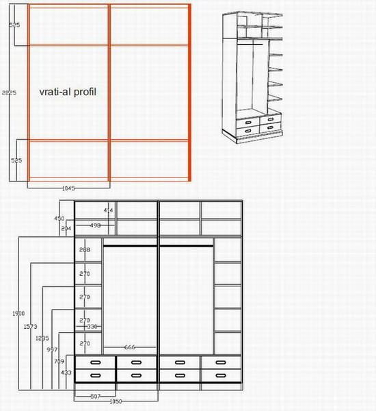
Ето чертежи на едно гардеробче.Размерите може да си ги преработите.Показвам го за да схванете принципа.Подробни чертежи с вашите размери струват пари :)

Прикачен файл

гардероб.jpg
гардероб.jpg (53.59 KиБ) Видяна 11193 пъти

Прикачен файл

гардероб 2.jpg
гардероб 2.jpg (58.8 KиБ) Видяна 11193 пъти
Здравейте с радост искам да ви се похваля че вече си имаме гардеробче е за жалост още не е готово напълно но и това ще стане :o
След няколко седмично ровене из нета и обикаляне на софия открих една фирма занимаваща се с мебелен обков от нея си поръчахме плоскостите за корубата. както и 2 броя гардеробни лифтчета. Мъжът ми и зет ми запретнаха ръкави и за 3 дни оразмериха надупчиха и зглобиха гардеробчето. :-D . Стана наистина внушително дълго 260см вискоко 250см дълбочина 60см. Три отделения във всяко има по седем рафтчета през 20 см и отгоре лифт. безкрайни благодарности на maroka защото неговите съвети ми помогнаха за да дам точните размери към фирмата. Сега ни остава само да изберем механизъм за вартите както и самите врати. По този повод дали ще е възможно да ме ориянтирате кой тип механизъм е по хубав и подходящ за огледална врата. За жалост от негова стил направо ме застреляха като ми дадоха оферта от 1300 лв за вратите и механизма. Дали може да ми препоръчате някои по евтин но качествен вариянт. Благодаря ви преварително
shadowman - майстор
Най-евтино е с механизми на MEPA (турско производство).
  • 1
  • 2

Тема "как да си направим гардеробче :)" | Включи се в дискусията:


Сподели форума:

Бъди информиран. Следвай "Направи сам" във Facebook:

Намери изпълнител и вдъхновения за дома. Следвай MaistorPlus във Facebook: