• 1
  • 2
Чакаме вашите въпроси за банята, ваната и т..н.
asterix - напреднал
Здравейте,

Трябва ми съвет относно избора на сифон и душ (пита) за следната баня (4.5 кв. м).
Прикачен файл:
banq.jpg
Целта е да се използва един лентов сифон както за отводняване на душ кабината (само паравани без корито) така и за самата баня. Душ кабината ще има врата като сифонът може да се постави пред, след или под вратата и. Размерът му може да бъде до 65 см. Важно е да се отбележи, че банята има подово отопление.

Имам следните въпроси:

Повечето лентови сифони са с воден затвор. Дали наличието на подово няма да доведе до изпаряване на водата и съответно "ароматизиране" на банята?

Повечето лентови сифони с клапа не изглеждат много здрави и читави. Освен това клапата намалява дебита, Дали един лентов сифон с клапа може да "поеме" водата идваща от пита?
jekasus - майстор
asterix написа:
Дали един лентов сифон с клапа може да "поеме" водата идваща от пита?
А смесителя, който ще захранва питата с какъв дебит?
asterix - напреднал
И него не съм избрал. Търся нещо разумно.
jekasus - майстор
Направо дай бюджет за смесител (вграден или не) -почват от...лв, душ-пита - там почва от 10лв и до безбожни - няма да казвам колко, при линеен сифон също - от скромни 110-150 лв до няколко хилядарки.
nikolov333 - майстор
ХилядаркИ за сифон.. баси :shocked: :megaeek:
jekasus - майстор
nikolov333 написа:
ХилядаркИ за сифон.. баси :shocked: :megaeek:
http://www.shop.bg-maistor.com/aco-show ... 0mm-detail
Чисто професионално, съм му голям мераклия...
asterix - напреднал
Малко ми е скъпичък този. А и банята ще е с прави форми.
asterix - напреднал
Спрял съм се на тези двата (основно заради марката)

Viega Advantix Vario:
Прикачен файл:
podovi-lentovi-sifoni-63-1375965947-full-0.jpg
podovi-lentovi-sifoni-63-1375965947-full-0.jpg (58.16 KиБ) Видяна 5612 пъти
Тяло: 430 лв
Прикачен файл:
viega-advantix-vario-lineen-sifon-za-bania-19-tech.jpg
viega-advantix-vario-lineen-sifon-za-bania-19-tech.jpg (19.13 KиБ) Видяна 5612 пъти
Решетка: 100 лв
Прикачен файл:
viega-advantix-vario-reshetka-hrom-686291-bg-maistor-5.jpg
viega-advantix-vario-reshetka-hrom-686291-bg-maistor-5.jpg (3.99 KиБ) Видяна 5612 пъти
Общо: 530 лв
asterix - напреднал
Какво ще кажете за:

Smart Care Tile/Glass 585x75
Прикачен файл:
product_9870.jpg
product_9870.jpg (95.39 KиБ) Видяна 5588 пъти
Прикачен файл:
product_9865.jpg
Цена: около 270 лв?
asterix - напреднал
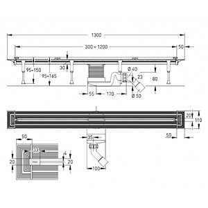
Или този на INOX STYLE:
Прикачен файл:
product_8660.jpg
product_8660.jpg (35.13 KиБ) Видяна 5587 пъти
Прикачен файл:
product_5324.jpg
Прикачен файл:
product_5321.jpg
Цена: 300 лв
  • 1
  • 2

Тема "Избор на сифон на лентов сифон за баня" | Включи се в дискусията:


Сподели форума:

Бъди информиран. Следвай "Направи сам" във Facebook:

Намери изпълнител и вдъхновения за дома. Следвай MaistorPlus във Facebook: