Здравейте!
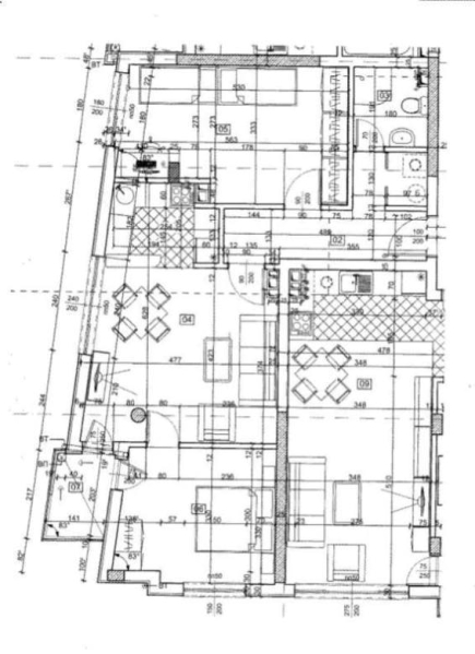
Става въпрос за апартамент в сграда, която в момента се строи. Съвсем скоро ще започнат да се изграждат вътрешните неносещи стени и всякакви промени по проекта такъв какъвто е в момента ще трябва да се уточнят. Аз си мисля за промени около банята и спалната - намаляване на банята, добавяне на сухо помещение или шкаф, евентуално отделяне на дрешник от спалната... Също има колони в спалната и хола, които се чудя как да използвам най добре.
Качвам скица на разпределението и благодаря предварително за всеки един съвет.
Става въпрос за апартамент в сграда, която в момента се строи. Съвсем скоро ще започнат да се изграждат вътрешните неносещи стени и всякакви промени по проекта такъв какъвто е в момента ще трябва да се уточнят. Аз си мисля за промени около банята и спалната - намаляване на банята, добавяне на сухо помещение или шкаф, евентуално отделяне на дрешник от спалната... Също има колони в спалната и хола, които се чудя как да използвам най добре.
Качвам скица на разпределението и благодаря предварително за всеки един съвет.
Прикачен файл
Apartament_skica_2.jpg (62.19 KиБ) Видяна 7039 пъти
