Здравейте
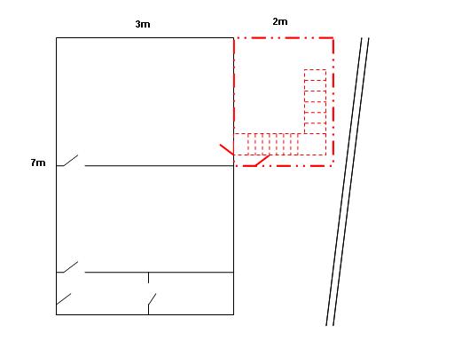
, попаднах във този форум преди 2-3 дни съвсем случайно и останах изумен. Много ми се иска ниакой да даде някаква идея, за това което съм намислил да правя. Имаме постройка тип лятна кухня, (скицата съм я правил на word, а и не съм правил до сега скици, та не знам дали ще добиете ясна представа) искам да я разширя в едната посока колкото да се развият стълби (с червените контури). По този начин искам да направя горе полуетаж, на който ще има само спални помещения (2 или 3), а долу да си остане кухня плюс трапезария. От дясно има ограда със съсдите. Долу може единствено да се разширява надясно.
Прикачен файл
Нещо като скица :)
scica.jpg (13.44 KиБ) Видяна 7124 пъти

