Здравейте,можете ли да ми кажете и изчислите какви радиатори колко мощни и каква печка с водна риза ще ми трябва за :
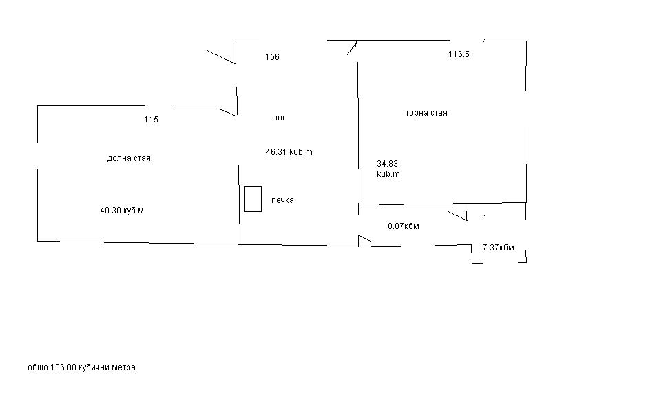
1 стая 34.83 куб,1 стая 40.30куб,хол кадето ще е печката 46.31куб,баня 7.37куб,коридор 8.07 куб.
мисля да купя на прити такава готварска печка на дърва с водна риза,но незнам каква,и радиатори но незнам колко дълги,спрял съм се наедни 30 см.височина че височината под прозорците ми е 50.
искам по нататак като сабера парички повече и боилер да сложа.
ако може някои да помогне ще съм благодарен.
Благодаря
1 стая 34.83 куб,1 стая 40.30куб,хол кадето ще е печката 46.31куб,баня 7.37куб,коридор 8.07 куб.
мисля да купя на прити такава готварска печка на дърва с водна риза,но незнам каква,и радиатори но незнам колко дълги,спрял съм се наедни 30 см.височина че височината под прозорците ми е 50.
искам по нататак като сабера парички повече и боилер да сложа.
ако може някои да помогне ще съм благодарен.
Благодаря
Прикачен файл
парно.JPG (22.1 KиБ) Видяна 7063 пъти
