Най - вълнуващия въпрос зимно време.
shefastz - напреднал
Здравейте!
Искам да ви попитам дали е добре проектирано парното тъй като нещо не съм доволен от него. Повече от 21 градуса не става. Блока е нов и целия е със външна изолация и добра дограма. Мисля че трябва да се добавят глидери още ама не съм сигурен.
Котела - Viessmann Vitopend 100 (двуконтурен).
радиатори - Industrie Pasotti Elegance
Също имам проблем със обезвъдушването на системата. Всеки ден обезвъздушавам радиатор по радиатор и пак има въздух, налягането на водата достига до 2,5 bar.
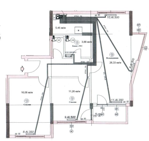
За по-голяма яснота съм приложил и чертеж
Благодаря Ви предварително!

Прикачен файл

Parno - Shema.jpg
Схема - Парно
Parno - Shema.jpg (42.58 KиБ) Видяна 10121 пъти
Последна промяна от shefastz на ср яну 20, 2010 2:49 pm, променено общо 1 път.
LazarGanev - "Велик майстор"
Здравей shefastz,
не ти е добре проектирано парното. На този котел му трябват двойно повече ребра. Минималната му мощност е около 11кВт, а ти имаш реално радиатори около 6кВт, ако котелът ти работи на 75°С. Така той не успява да стопли, а сметките ти предполагам са големи? Като най-безболезненизход ти предлагам единия от радиаторите в хола да го разпределиш по спалните, а на негово място да сложиш конвектор с мощност поне 6-8кВт
shefastz - напреднал
LazarGanev написа:
Здравей shefastz,
не ти е добре проектирано парното. На този котел му трябват двойно повече ребра. Минималната му мощност е около 11кВт, а ти имаш реално радиатори около 6кВт, ако котелът ти работи на 75°С. Така той не успява да стопли, а сметките ти предполагам са големи?
Да вярно че сметките ми са големи около 200 лв ми излиза някаде на месец. Добре а предложете ми някоя фирма която да ми постави глидери и как да си мсетна колко глидера да купя защото незнам кой е правил парното тъй като апартамента го взех със инсталирана инсталация.
LazarGanev - "Велик майстор"
Тука има достатъчно спецове, а можем да дадем и други, но трябва да кажеш за кое село става въпрос? :)
shefastz - напреднал
Става въпрос за София
AntonBM - специалист
Аз сметнах, че мощността на радиаторите с лирата на банята ти е към 11 kW – при топлоносител 90/70°С. Не ми се играе да ти смятам потребните топлини по помещенията, но на пръв поглед мисля, че проектанта не е сгрешил много при избора на радиатори. Т.е. не би трябвало да имаш грижи! Това, че котела ти е с диапазон на регулиране от 10,5 до 24 kW означава, че има мощност и няма да има проблем със загряването на водата, но при по-ниска потребна мощност ще дава преразход на енергия (не повече от 5% - дължи се на честото му включване и изключване).
Ти обаче казваш, че не се затопляш до повече от 21°. Причините за това може да са много. По-долу ще напиша няколко, но едва ли ще се сетя за всички:
1. Инсталацията е оразмерявана (избора на радиатори) при условие, че съседите също се отопляват. Ако те не се отопляват потребната ти мощност нараства от 11 на поне 15 kW и радиаторите вече идват малки. (решението ти го е дал Лазар)
2. Сградата, в която живееш е много нова. При тези сгради още не са приключили мокрите процеси – има остатъчна влага в стените, която още не е излязла и тя пречи на повишаването на температурите. Като поизсъхне ще се оправи.
3. Нямаш автоматика, която да следи външната температура и да променя температурата на радиаторите в зависимост от нея. Или имаш такава, но е настроена грешно. Ако нямаш такава автоматика, ти ръчно трябва да зададеш каква температура искаш да са радиаторите. Когато ти е студено я вдигаш и обратно. Ако имаш автоматика, трябва да се регулира температурната крива (това е работа за специалист – при -14°С трябва да подава 90° към радиаторите).
Пишеш, че имаш проблем с обезвъздушаването. Най-вероятно разширителният ти съд е изтървал въздуха си. Налягането на инсталацията (в твоя случай) не трябва да спада под 0,5 Bar и не нормално при загряване на котела да превишава 1 Bar. Тези налагания зависят от: долното – системата за автоматично пълнене (ако има такава); горното от налягането на въздуха в разширителният съд. Най-вероятно разширителният ти съд е без въздух и в този случай налягането се повишава плавно до 2,5 Bar и се задържа на това ниво, понеже се изхвърля вода от предпазният клапан. Виж с манометър (при студена инсталация) колко е налягането не разширителният съд. (при теб трябва да е към 0,7 ±0,1 Bar).
Така както представяш "чертежа "на отоплителната конструкция изглежда професионално добре.Но факторите от които зависи КПД на инсталацията са много.Същото зависи и за системата с отоплителната течност и нейното обезвъздушаване .Не съм топлоенергетик но го направих сам по инструкция на сайта на "КНАУФ".Първо ,общата квадратура на жилището и от там необходимата мощност на котела.За 200куб.м обем ти трябва според "кнауф"за тем.23/27 гр.на въздуха 17 кв.отоплителна мощност на котела.И на мен 11кв.ми е на долната граница и аз имам сравнително ниска тем.в стаите./21 до 23 гр./Второто условие е нагнетателната помпа.Дву скоростна с мощ.135 вата на "кнауф".Третото за това че не може да се объздуши ,трябва да има разширителен/отворен/съд през който се пълни на голяма височина,някъде до тавана в тоалетната ми е от където се допълва с течност/вода/.Всек отделен кръг и радиатор е също отежняващо положение.И не на последно място площа на всеки радиаторен блок,според куб.на помещениетои вида на коефициента на топлоотдаване на радиатора/конвенционалните се слагат и под прозорците.Колко глидера зависи от сметките.А обема им като цяло в литри е според техния вид.За мен при 96кв.м. апартамент или тези 200 куб. имам 96л./100/охл.течност .Според "кнауф 1/3 течност има в казана на печката и при пълно натоварване излиза 76 гр. на изхода на този разпределител с многото отклонения.По голяма тем.е опасна и за тръбите и за помпата.Така не се износват...въобще сложна работа.
Поздрави и успех .Но започни от радиаторите и стигни до печката.Тя е по трудна и по скъпа за смяна.
Последна промяна от dimitar.b на ср яну 20, 2010 2:13 pm, променено общо 1 път.
filmatoplo - майстор
И двамата колеги са прави и се допълват -естествено имаш повече топлозагуби , и според мен пръсни единия радиатор по останалите и сложи вентил конвектор на негово место :idea: , за налягането + автоматиката също проверете обясненото от колегата .
shefastz - напреднал
Когато разгледах под котела инсталациятя на самото парно от единия разширителен съд сълзи малко вода явно нещо се е прецакало. Само че незнам какво се прави при тази ситуация :?
А дали може да се добавят още глидери без да се маха радиатор от хола. Също така ме посъветваите за някаква фирма за поставяне на глидери, такъв вид радиатор конвектор, профилактика защото за първи път се отоплям със таквъв вид топлоизточник и нищо не разбирам от такава инсталация
AntonBM - специалист
Разширителните съдове (РС) много трудно се повреждат до там, че чак да почнат да капят. До тях обаче се монтират предпазните клапани – от тях идва водата. Най-вероятно твоят клапан е 2,5 Bar и при загряване на котела (ако РС не работи) налягането достига тази стойност и прокапва. Проблема не е в клапана! Той си работи. Напомпи разширителният съд (става с помпа за кола) до 0,7 Bar. Преди да го напомпиш трябва налагането на инсталацията да спадне до стойност по-ниска от 0,7 (т.е. да изчакаш да изстине).
Така, ще си решиш проблема с обезвъздушаването, но не и с температурата в помещенията.

Тема "Добре ли е проектирано парното с газов котел" | Включи се в дискусията:


Сподели форума:

Бъди информиран. Следвай "Направи сам" във Facebook:

Намери изпълнител и вдъхновения за дома. Следвай MaistorPlus във Facebook: