Най - вълнуващия въпрос зимно време.
fox_vt - майстор
kalin72 написа:
Не мога да ви разбера едно-защо упорито настоявате че старите машини са по добри от новите.
Посочи ми къде е казано това отгоре.
Имам чувството, че ти си сърдито, малко старче, търсещо да се заяде за какво ли не.
А ние просто искахме някакви данни, тестове, потребители на този котел, да се изкажат, кое как е, плюсове, минуси....
Офф стига вече четене по диагонал хора спрете се вече :wink:

[quote="jabata" А що се отнася до твоя велик климатик от 21 век, само искам да ти кажа че техниката също е много стара, още от миналия век, но понеже е скрита зад малко електроника, ти наивно си мислиш че е супер модерна...[/quote]

[quote="n.ganev"Хората наблягат на скъпи коли дето могат да им сменят маслото през нета, на скъпи телефони дето могат да са в нета през работно време и да си чешат пръстите , а ние дъртите сме вече за кашмер щот сме решили аджеба че може и с добрата. Айде нема нужда![/quote]
LazarGanev написа:
Колкото до клапи и бленди за регулиране на въздуха - изобщо не са от 19век, а сигурно поне 30-40 процента от съществуващите котли се регулират по този начин, а точно там има най-голяма нужда от газанализатор. Както видя Торчове от 21 век във форума почти няма :lol: .
Само от последната страница,назад да вадя ли още.То не бе дърпане за модулиращата горелка,за интернет модулите,контролерите и т н Козата си сака пръч хората в този форум искат котел който да се налага да са постоянно до него.Евалата на хората купили си автоматичен пелетен котел който наистина е пелетен котел.Всичко друго е имам си печка която може да гори И пелети.За какво човек минава на пелетен котел дали е заради по ниската цена на отоплението не заради удобството.За това човек дава малко повече пари да си пие пиенето и машината сама да си работи ,а не да си прекарва живота в мазата.Ама не то българина си е българин никога няма да е доволен ,даже и да е евтино и хубаво на комшията ще намери кусур да се заяде.
n.ganev - майстор
krasen1 написа:
А кой ще плаща на колегите
БРАВОС! Ти ли ме питаш, че нещо не разбрах??? Да не продължавам.
krasen1 - специалист
n.ganev написа:
krasen1 написа:
А кой ще плаща на колегите
БРАВОС! Ти ли ме питаш, че нещо не разбрах??? Да не продължавам.
Аз съвсем пък не разбрах. :? Няма да е лошо да продължиш.
Christo - майстор
Дайте да не съсипваме хубавата тема. Котлите и пелетите са скъпи, на нас не ни достигат знания и опит, всяка разумна помощ и съвет ще са от полза. Тези, които се занимават с отоплителни инсталации професионално и са си купили газ анализатори заслужават похвала. Изръсили са се две и повече хиляди лева но ще са в състояние да настроят горенето, доколкото позволява конкретния котел, така че КПД да е максимално. Иначе кво прайм? Гледаме цвета на пламъка. Колко точно е КПД-то е късно да определяме у нас в мазето. Освен центровките, няма и какво много да направим. Моментът с КПД-то е отминал когато сме броили паричките в магазина. И трябва да е ясно, че колкото и да центроваме Трабантчето, няма да тръгне като Мерцедес.
filmatoplo - майстор
Правилно -Кпд на котела само в лаборатория, с газанализатора ще се Анализира състава на димните газове ,анализа ще покаже нивата на най спряганите въглероден двуокис и кислород, и ако е необходимо ще се коригира въздухоподаването за да влезе състава в определени норми, при смяна на пелети това би трябвало да се повтори. Все още у нас нещата са както се казва Пълен та...ак що се однася до контрол над пелетните устройства и качество пелети. Започват уж нещата че да видим.
vaseto89 - специалист
Здравейте приятели!

От няколко дни заглеждам една обява в OLX http://olx.bg/komplekt-peletna-gorelka- ... -i55923280
Доколкото останах с впечетление това са български котли и горелки от Благоевград под името Golden Fire или Marreli Systems и по мой наблюдения са копие на Biosolid Saver C, а цената им е с 1000лв по ниска.

Имате ли някакво впечетление или коментар да изразите по моя въпрос?

Поздрави!
fbr - майстор
А те вместо да сложат една скица на топлообменника, сложили макроснимка на табелата си. Пфу, какъв коментар може да се направи, никакъв, просто черна кутия.
vaseto89 - специалист
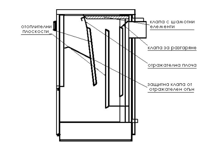
Това успях да намеря за котела : http://dox.bg/files/dw?a=5a379a604a
fbr - майстор
Ако това наистина са "отоплителни плоскости" каквото и да значат, а не е водна риза, бягай далече от него.

Прикачен файл

kot.jpg
kot.jpg (29.65 KиБ) Видяна 2345 пъти

Тема "Котел на пелети?" | Включи се в дискусията:


Сподели форума:

Бъди информиран. Следвай "Направи сам" във Facebook:

Намери изпълнител и вдъхновения за дома. Следвай MaistorPlus във Facebook: